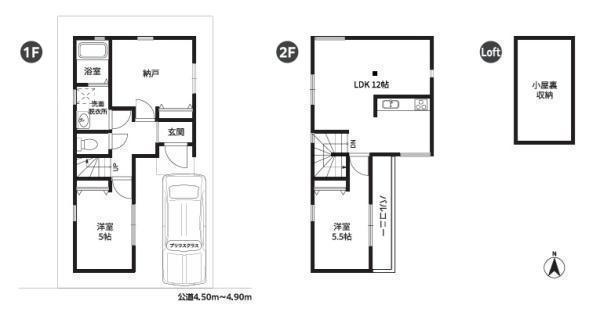
各階にゆとりある居室を備えた間取りです。ロフト収納が設けられており収納力も充実しています。2階リビングダイニングは12帖あり開放的です。駐車スペースも確保されているので便利です。
浴室に窓が設置されているため明るさや開放感を感じられます。風通しの良さが期待でき日中の換気にも便利です。浴室内の湿気対策にも役立ちます。毎日のバスタイムを快適にサポートします。
スーパーまで徒歩10分以内の便利な立地が特徴です。日常の買い物に困りません。気軽に利用できる距離感が魅力です。生活の利便性が高まるポイントです。
小学校まで徒歩10分以内の立地です。通学に便利な距離で日々の送り迎えにも安心感があります。近隣へのアクセスも良好です。生活環境が充実しています。



再開発が進む注目エリア「綱島」!都心アクセスと静けさを両立する住まい!小学校まで約550m、中学校まで約220m!スーパー・コンビニも徒歩10分圏内で子育て世代にも嬉しい環境です!
東急東横線 綱島駅 徒歩 18分
横浜市営グリーンライン 高田駅 徒歩 21分
横浜市営グリーンライン 高田駅 徒歩 21分
新吉田小学校 約550m
新田中学校 約220m