今すぐ無料の会員登録で
閲覧可能物件数が
+1,794
営業時間: 9:30~20:30
定休日: 火曜日、水曜日
建物
物件画像
周辺環境
QRコードをスキャンして携帯でもご覧になれます。

新築一戸建

センチュリー21ゲットハウス
高井 風太
お問い合わせ先: 0120-540-844

おすすめコメント

小机駅まで徒歩18分の立地!
スカイバルコニー付き!
子育て家族におすすめです♪

新築一戸建て
5,780万円
    月々の返済額:15万円台
    神奈川県横浜市港北区鳥山町
    表示住所までのルート

    横浜線 小机駅 徒歩 18分 駅までのルート

    横浜市営ブルーライン 片倉町駅 徒歩 19分 駅までのルート

    NEW現地見学会おすすめ会員限定
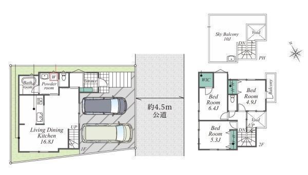
    間取り
    3LDK(3LDK)
    築年月
    2026年04月完成
    土地面積
    99.28㎡(30.03坪)[公簿]
    建物面積
    80.94㎡(24.48坪)
    今すぐ会員登録する資料請求お気に入りに追加
    お問い合わせ先: 0120-540-844
    電話でお問合せする

    スカイバルコニー付きの3LDK!ミニバン等も駐車可能なゆとりスペース!ご家族の顔を合わせる機会が増えるリビングイン階段です!各室に収納がありお部屋が広く使えます!

    物件情報
    名称
    新築一戸建
    価格
    5,780万円(税込)
    権利金/保証金
    なし/なし
    所在地
    神奈川県横浜市港北区鳥山町地図
    交通

    横浜線 小机駅 徒歩 18分

    横浜市営ブルーライン 片倉町駅 徒歩 19分

    間取り
    3LDK(3LDK)
    部屋
    1F LDK 16.8帖 、2F 洋 6.4帖 、2F 洋 5.3帖 、2F 洋 4.9帖
    建物現況
    完成済
    建物面積
    80.94㎡(24.48坪)
    土地面積
    99.28㎡(30.03坪)[公簿]
    地目
    宅地
    土地権利
    所有権
    築年月
    2026年04月完成
    建物構造
    木造(W)
    建物階建
    2階建
    駐車場
    あり 2台 カースペース
    建築確認番号
    第25KAK建確02110号
    設備・条件
    トイレ2ヶ所 ウォークインクローゼット シューズボックス バルコニー 複層ガラス ガス:都市ガス 汚水:公共下水(使用可) 水道:公営水道(使用可)
    都市計画
    市街化区域
    用途地域
    第一種低層住居専用地域
    建ぺい率/容積率
    50%/80%
    国土法の届出
    不要
    特記事項
    宅地造成等工事規制区域
    セットバック
    なし
    私道負担
    なし
    接道状況
    一方 南東:幅員4.5m公道
    地域地区
    高度地区
    引渡時期
    相談
    学区

    城郷小学校 約1100m

    城郷中学校 約2000m

    備考
    ●複層ガラス●玄関タグキー●WIC●壁掛けテレビ設置可能な補強壁●下足入●
    物件情報更新日
    2026年04月25日(物件情報更新日より14日以内に更新)
    物件コード
    83998
    取引態様
    仲介
    今すぐ会員登録する資料請求お気に入りに追加
    お問い合わせ先: 0120-540-844
    電話でお問合せする

    地図

    センチュリー21ゲットハウス
    センチュリー21ゲットハウス
    来店・案内予約はこちら
    〒223-0052
    神奈川県横浜市港北区綱島東1丁目6-3 TS吉原ビル2・3F
    0120-540-844
    営業時間:9:30~20:30 定休日:火曜日、水曜日
    ローンシミュレーション
    • {{error}}
    物件価格
    5,780万円
    借入予定額
    万円
    頭金
    万円
    ボーナス(1回分)
    万円
    返済期間
    ローン金利
    ※ 金利参考先:横浜銀行
    金利
    %
    毎月の支払額
    {{repayment_price}} 円

    条件がよく似た物件

    外観
    外観
    間取図/区画図
    間取図/区画図
    外観
    横浜市立城郷小学校(小学校) 1202m
    横浜市立城郷中学校(中学校) 2143m
    岸根こども園(幼稚園・保育園) 1337m
    Fuji鳥山店(スーパー) 628m
    まいばすけっと横浜鳥山町店(スーパー) 1115m
    ミニストップ新横浜1丁目店(コンビニ) 1215m
    Fit Care DEPOT岸根店(ドラッグストア) 1131m
    独立行政法人労働者健康福祉機構横浜労災病院(病院) 2272m
    横浜六角橋北郵便局(郵便局) 2105m
    スマートフォン版の表示に切り替える