当店へお越しいただいての相談をご希望の方はこちらからご予約ください。
無料の会員登録で希望条件にマッチする最新情報をメールで受け取ることができます。
住替えや空き家管理など、売却・買取のご相談を専門にご相談いただけるフォームです。
お住まいに関すること、ウェブサイトに関することなど、お気軽にお問い合わせください。
横浜市営ブルーライン センター北駅 徒歩 14分 駅までのルート
横浜市営グリーンライン センター北駅 徒歩 14分 駅までのルート
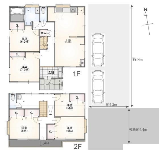
フルリノベ―ションデザイナーズ中古戸建!自然と調和した静けさでゆとりの住環境!「センター北」駅徒歩14分!小・中学校徒歩6分圏内、子育て世代に理想の立地です!
お客様のご家族全員が満足される住宅を提案出来るように心がけております
横浜市営ブルーライン センター北駅 徒歩 14分
横浜市営グリーンライン センター北駅 徒歩 14分
中川小学校 約250m
中川中学校 約350m