今すぐ無料の会員登録で
閲覧可能物件数が
+1,713
営業時間: 9:30~20:30
定休日: 火曜日、水曜日
NO IMAGE
建物
物件画像
周辺環境
QRコードをスキャンして携帯でもご覧になれます。

新築一戸建 4号棟

新築一戸建て
7,390万円
    月々の返済額:19万円台
    神奈川県横浜市港北区新吉田東1丁目
    表示住所までのルート

    横浜市営グリーンライン 高田駅 徒歩 12分 駅までのルート

    東急東横線 綱島駅 徒歩 23分 駅までのルート

    横浜市営グリーンライン 日吉本町駅 徒歩 21分 駅までのルート

    NEW現地見学会おすすめ会員限定
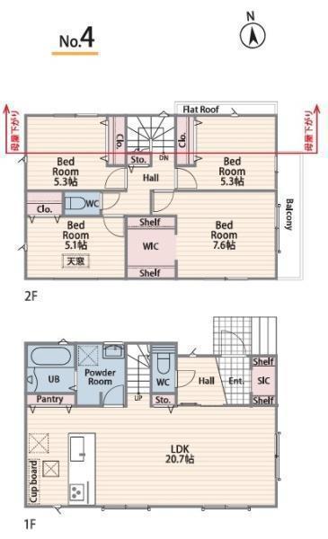
    間取り
    4LDK(4LDK)
    築年月
    2026年07月予定
    土地面積
    108.64㎡(32.86坪)[公簿]
    建物面積
    105.99㎡(32.06坪)
    今すぐ会員登録する資料請求お気に入りに追加
    お問い合わせ先: 0120-540-844
    電話でお問合せする

    「高田」駅徒歩12分!駅まで平坦!閑静な住宅街!カースペース2台駐車可能!広々LDK20帖超!水廻り集中設計で家事導線が短く効率的!家族の会話も弾む人気の対面式キッチンです!

    お客様のご家族全員が満足される住宅を提案出来るように心がけております

    物件情報
    名称
    新築一戸建 4号棟
    価格
    7,390万円(税込)
    権利金/保証金
    なし/なし
    所在地
    神奈川県横浜市港北区新吉田東1丁目
    交通

    横浜市営グリーンライン 高田駅 徒歩 12分

    東急東横線 綱島駅 徒歩 23分

    横浜市営グリーンライン 日吉本町駅 徒歩 21分

    間取り
    4LDK(4LDK)
    部屋
    1F LDK 20.7帖 、2F 洋 7.6帖 、2F 洋 5.1帖 、2F 洋 5.3帖 、2F 洋 5.3帖
    建物現況
    建築中
    建物面積
    105.99㎡(32.06坪)
    土地面積
    108.64㎡(32.86坪)[公簿]
    地目
    宅地
    土地権利
    所有権
    築年月
    2026年07月予定
    建物構造
    木造(W)
    建物階建
    2階建
    駐車場
    あり 2台 カースペース
    建築確認番号
    第25KAK建確02770号
    設備・条件
    食器棚 トイレ2ヶ所 ウォークインクローゼット 全居室収納 床下収納 物置 バルコニー 閑静な住宅街 ガス:都市ガス 汚水:公共下水(使用可) 雑排水:公共下水(使用可) 水道:公営水道(使用可)
    都市計画
    市街化区域
    用途地域
    第一種低層住居専用地域
    建ぺい率/容積率
    60%/100%
    国土法の届出
    不要
    セットバック
    なし
    私道負担
    なし
    接道状況
    一方 北東:幅員4.5m
    地域地区
    準防火地域 高度地区
    引渡時期
    2026年8月下旬
    学区

    新吉田小学校 約850m

    新田中学校 約500m

    備考
    4号棟●パントリー●カップボード付き●床下収納●SIC●WIC●リビング階段●
    物件情報更新日
    2026年04月20日(物件情報更新日より14日以内に更新)
    物件コード
    86773
    取引態様
    仲介
    今すぐ会員登録する資料請求お気に入りに追加
    お問い合わせ先: 0120-540-844
    電話でお問合せする
    センチュリー21ゲットハウス
    センチュリー21ゲットハウス
    来店・案内予約はこちら
    〒223-0052
    神奈川県横浜市港北区綱島東1丁目6-3 TS吉原ビル2・3F
    0120-540-844
    営業時間:9:30~20:30 定休日:火曜日、水曜日
    ローンシミュレーション
    • {{error}}
    物件価格
    7,390万円
    借入予定額
    万円
    頭金
    万円
    ボーナス(1回分)
    万円
    返済期間
    ローン金利
    ※ 金利参考先:横浜銀行
    金利
    %
    毎月の支払額
    {{repayment_price}} 円

    条件がよく似た物件

    間取図/区画図
    その他
    間取図/区画図
    その他
    横浜市立新吉田小学校(小学校) 850m
    横浜市立新田中学校(中学校) 500m
    しんよしだ幼稚園(幼稚園・保育園) 825m
    オーケー新吉田店(スーパー) 700m
    いなげや横浜綱島店(スーパー) 796m
    セブンイレブン横浜新吉田東1丁目店(コンビニ) 618m
    クリエイトエス・ディー港北新吉田店(ドラッグストア) 575m
    医療法人すこやか高田中央病院(病院) 1460m
    日吉本町鯛ケ崎公園(公園) 1558m
    スマートフォン版の表示に切り替える