当店へお越しいただいての相談をご希望の方はこちらからご予約ください。
無料の会員登録で希望条件にマッチする最新情報をメールで受け取ることができます。
住替えや空き家管理など、売却・買取のご相談を専門にご相談いただけるフォームです。
お住まいに関すること、ウェブサイトに関することなど、お気軽にお問い合わせください。
横浜市営グリーンライン 高田駅 徒歩 12分 駅までのルート
東急東横線 綱島駅 徒歩 23分 駅までのルート
横浜市営グリーンライン 日吉本町駅 徒歩 21分 駅までのルート
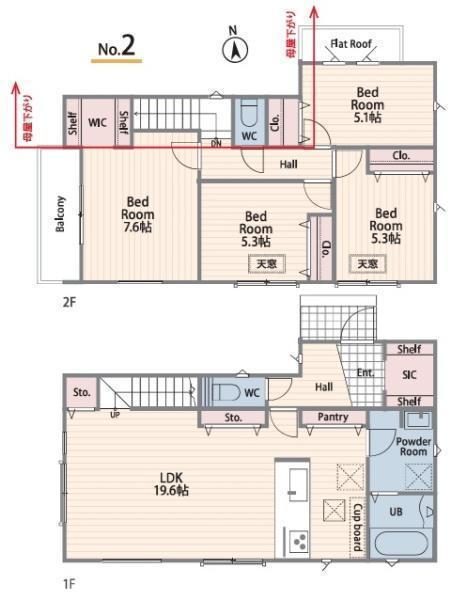
「高田」駅徒歩12分!駅まで平坦!閑静な住宅街!カースペース2台駐車可能!広々LDK19超!水廻り集中設計で家事導線が短く効率的!家族の会話も弾む人気の対面式キッチンです!
お客様のご家族全員が満足される住宅を提案出来るように心がけております
横浜市営グリーンライン 高田駅 徒歩 12分
東急東横線 綱島駅 徒歩 23分
横浜市営グリーンライン 日吉本町駅 徒歩 21分
新吉田小学校 約850m
新田中学校 約500m