今すぐ無料の会員登録で
閲覧可能物件数が
+1,681
営業時間: 9:30~20:30
定休日: 火曜日、水曜日

落ち着いた色合いの外観が印象的です。バルコニーが各部屋に設けられ開放感があります。1階には駐車スペースが確保されており車の出し入れも便利です。しっかりとした造りのマンションです。

リビングダイニングキッチンは約13.5帖とゆったりとした空間です。各洋室にはクローゼットがあり収納に便利です。バルコニーに面したリビングは明るい印象です。

外観は落ち着いた色合いで周囲の環境と調和しています。清潔感のある共用部分が印象的です。建物はしっかりとした造りで安心感があります。階段が広く昇り降りも快適です。

エントランスは重厚感のある石造りで落ち着いた雰囲気が漂います。ガラス扉が設置されており開放感も感じられます。車寄せスペースも隣接しているため利便性があります。グリーンのアクセントも印象的です。

エントランスはガラス扉と石調の壁面が特徴です。明るく開放的な空間が広がっています。共用部の清掃も行き届いている印象です。大きなガラス扉が視認性を高めています。

便利な宅配ボックス付きで不在時でも荷物の受け取りができます。セキュリティ対策としてカメラも設置されています。エントランスは明るく清潔感があります。管理の行き届いた共用部が特徴です。

明るいエントランスロビーは清潔感があります。窓口やモニターが設置されており利便性が感じられます。大きなガラス扉が開放的な印象を与えています。観葉植物が設置されているため雰囲気に彩りが加わっています。

スタイリッシュなデザインのモニター付きインターホンが設置されています。訪問者の確認がしやすいカメラ付き仕様です。操作パネルも見やすく使い勝手に配慮されています。

エントランス横に設けられた専用スペースがあり使い勝手の良さが感じられます。落ち着いた外観が特徴的です。建物全体がシンプルなデザインで統一されています。

共用部には複数の郵便ポストが設置されており各住戸ごとに郵便物の受け取りが可能です。設備がしっかり配置されているため日々の利用にも便利です。清潔感のあるタイル張りの壁面が特徴的です。

建物の外壁に設置されたシンプルな立水栓です。メンテナンスがしやすい位置にありさまざまな用途に利用可能です。周囲はタイル張りで清掃がしやすい設計となっています。壁際のスペースを有効活用しています。

敷地内にゴミ集積所が設置されており分別や収集にも便利です。清潔感のあるネット仕様でゴミの飛散防止にも配慮されています。屋外に設置されているため出し入れもスムーズです。

建物の一部が屋根付きになっている駐車場です。敷地内に複数台分の駐車スペースが確保されています。舗装も整備されており車の出し入れがしやすい構造です。建物内に接しているため雨天でも乗り降りが便利です。

屋内型の駐輪場で自転車やバイクをしっかりと保管できます。ラック付きなので収納も効率的です。コンクリート壁で防犯面にも配慮されています。空調設備も設置されており快適な利用が可能です。

建物外観は落ち着いた色合いで周囲の街並みに調和しています。道路幅が広く車の出入りも安心です。自転車置き場や緑も設けられています。エントランスも分かりやすい位置にあり使い勝手が良さそうです。

建物内に設置された駐輪場は複数台の自転車やバイクをしっかり収納できます。ラック式のため駐輪がしやすいです。屋根付きで雨の日も安心してご利用いただけます。スペースの広さもポイントです。

建物の敷地内に設置された専用のゴミ置き場です。丈夫なメッシュで囲まれているため動物によるゴミの散乱を防ぎやすいです。敷地の一角に配置されていて道路からもアクセスしやすく便利です。

エントランスに設置された宅配ボックスが便利です。壁や床は清潔感があり管理の行き届いた共用スペースです。防犯カメラも設置されているので安心感があります。

スタイリッシュなデザインのモニター付きインターホンが設置されています。来訪者を確認できるので安心感が得られます。壁にすっきりと取り付けられており見た目もスマートです。

エントランス付近に便利なゴミ集積所が設置されています。建物と一体感のあるデザインで清潔感が保たれています。扉付きで外から中が見えにくい構造です。管理がしやすい位置にあり使い勝手の良さが感じられます。

外部に設置された水栓があり屋外での作業や手洗いにも便利です。タイル張りの壁と床でお手入れもしやすい仕様となっています。コーナー部分に設置されているため雨風の影響を抑えやすく使い勝手が良いです。

建物のすぐ近くに駐車スペースが設けられており天候に左右されにくい造りです。駐車場は屋根付きで車の保護にも配慮されています。駐車位置もフラットで出入りがしやすい設計となっています。

建物
物件画像
周辺環境
QRコードをスキャンして携帯でもご覧になれます。

ロマネパーク大倉山

ロマネパーク大倉山

中古マンション
3,980万円
  • 共益費・管理費:
    12,600円
  • 修繕積立金(月額):
    16,300円
月々の返済額:10万円台
神奈川県横浜市港北区樽町1丁目
表示住所までのルート

東急東横線 大倉山駅 徒歩 15分 駅までのルート

東急東横線 綱島駅 徒歩 16分 駅までのルート

NEW現地見学会おすすめ会員限定
間取り
2LDK(2LDK)
所在階
3階
築年月
2006年03月完成
専有面積
55.68㎡(16.84坪)[壁芯]
今すぐ会員登録する資料請求お気に入りに追加
お問い合わせ先: 0120-540-844
電話でお問合せする

東急東横線「大倉山」駅徒歩15分!横浜方面・都心へもアクセス良好!駅周辺は商店街・コンビニ等あり便利!利便性と自然が両立した住みやすいエリアです!大切なペットと暮らせます!

お客様のご家族全員が満足される住宅を提案出来るように心がけております

物件情報
名称
ロマネパーク大倉山
価格
3,980万円(税込)
共益費・管理費
12,600円
修繕積立金(月額)
16,300円
リフォーム
あり [施工時期] 2026年08月 [箇所] キッチン 浴室 トイレ 壁、天井(クロス、塗装等) 床 洗面 給湯器 その他 建具(室内ドア等) 大規模修繕工事済
リノベーション
あり 施工時期 2026年08月 内容 システムキッチン・ユニットバス(換気乾燥暖房機付)・トイレ(ウォシュレット付)洗面化粧台・洗濯パン・給湯器(追い焚き付)・シューズボックス・他
権利金/保証金
なし/なし
所在地
神奈川県横浜市港北区樽町1丁目
交通

東急東横線 大倉山駅 徒歩 15分

東急東横線 綱島駅 徒歩 16分

間取り
2LDK(2LDK)
部屋
LDK 13.5帖 、洋 4.5帖 、洋 4.5帖
専有面積
55.68㎡(16.84坪)[壁芯]
築年月
2006年03月完成
建物構造
鉄筋コンクリート造(RC)
所在階/建物階建
3階 / 5階建
総戸数/販売戸数
20戸
その他面積
バルコニー面積:7.58㎡
現況
駐車場
あり(空きなし)
管理
管理形態:全部委託 管理人状況:日勤 管理会社:日本ハウズイング(株)
施工会社
共立建設(株)
設備・条件
フローリング 照明器具 システムキッチン 給湯 追い焚き シューズボックス 全居室収納 物置 タイル貼り TVドアホン 防犯カメラ エレベーター バルコニー 閑静な住宅街 洗濯機置場:室内 冷暖房:エアコン ペット:可
土地権利
所有権
都市計画
市街化区域
用途地域
第一種住居地域
国土法の届出
不要
引渡時期
即引渡し可
学区

師岡小学校 約762m

樽町中学校 約624m

備考
●システムキッチン●浴室乾燥暖房機●追焚き●洗面化粧台●エアコン●温水洗浄便座●
物件情報更新日
2026年04月10日(物件情報更新日より14日以内に更新)
物件コード
86521
取引態様
仲介
建物情報
建物現況
完成済
建物名称
ロマネパーク大倉山
建物向き
西
今すぐ会員登録する資料請求お気に入りに追加
お問い合わせ先: 0120-540-844
電話でお問合せする
センチュリー21ゲットハウス
センチュリー21ゲットハウス
来店・案内予約はこちら
〒223-0052
神奈川県横浜市港北区綱島東1丁目6-3 TS吉原ビル2・3F
0120-540-844
営業時間:9:30~20:30 定休日:火曜日、水曜日
ローンシミュレーション
  • {{error}}
物件価格
3,980万円
借入予定額
万円
頭金
万円
ボーナス(1回分)
万円
返済期間
ローン金利
※ 金利参考先:横浜銀行
金利
%
毎月の支払額
{{repayment_price}} 円

条件がよく似た物件

外観
落ち着いた色合いの外観が印象的です。バルコニーが各部屋に設けられ開放感があります。1階には駐車スペースが確保されており車の出し入れも便利です。しっかりとした造りのマンションです。
その他現地写真
外観は落ち着いた色合いで周囲の環境と調和しています。清潔感のある共用部分が印象的です。建物はしっかりとした造りで安心感があります。階段が広く昇り降りも快適です。
エントランス
エントランスは重厚感のある石造りで落ち着いた雰囲気が漂います。ガラス扉が設置されており開放感も感じられます。車寄せスペースも隣接しているため利便性があります。グリーンのアクセントも印象的です。
エントランス
エントランスはガラス扉と石調の壁面が特徴です。明るく開放的な空間が広がっています。共用部の清掃も行き届いている印象です。大きなガラス扉が視認性を高めています。
その他共有部
便利な宅配ボックス付きで不在時でも荷物の受け取りができます。セキュリティ対策としてカメラも設置されています。エントランスは明るく清潔感があります。管理の行き届いた共用部が特徴です。
ロビー
明るいエントランスロビーは清潔感があります。窓口やモニターが設置されており利便性が感じられます。大きなガラス扉が開放的な印象を与えています。観葉植物が設置されているため雰囲気に彩りが加わっています。
その他共有部
エントランス横に設けられた専用スペースがあり使い勝手の良さが感じられます。落ち着いた外観が特徴的です。建物全体がシンプルなデザインで統一されています。
その他共有部
共用部には複数の郵便ポストが設置されており各住戸ごとに郵便物の受け取りが可能です。設備がしっかり配置されているため日々の利用にも便利です。清潔感のあるタイル張りの壁面が特徴的です。
その他共有部
建物の外壁に設置されたシンプルな立水栓です。メンテナンスがしやすい位置にありさまざまな用途に利用可能です。周囲はタイル張りで清掃がしやすい設計となっています。壁際のスペースを有効活用しています。
その他共有部
屋内型の駐輪場で自転車やバイクをしっかりと保管できます。ラック付きなので収納も効率的です。コンクリート壁で防犯面にも配慮されています。空調設備も設置されており快適な利用が可能です。
その他現地写真
建物外観は落ち着いた色合いで周囲の街並みに調和しています。道路幅が広く車の出入りも安心です。自転車置き場や緑も設けられています。エントランスも分かりやすい位置にあり使い勝手が良さそうです。
その他現地写真
建物内に設置された駐輪場は複数台の自転車やバイクをしっかり収納できます。ラック式のため駐輪がしやすいです。屋根付きで雨の日も安心してご利用いただけます。スペースの広さもポイントです。
その他共有部
建物の敷地内に設置された専用のゴミ置き場です。丈夫なメッシュで囲まれているため動物によるゴミの散乱を防ぎやすいです。敷地の一角に配置されていて道路からもアクセスしやすく便利です。
その他共有部
エントランスに設置された宅配ボックスが便利です。壁や床は清潔感があり管理の行き届いた共用スペースです。防犯カメラも設置されているので安心感があります。
その他共有部
エントランス付近に便利なゴミ集積所が設置されています。建物と一体感のあるデザインで清潔感が保たれています。扉付きで外から中が見えにくい構造です。管理がしやすい位置にあり使い勝手の良さが感じられます。
その他現地写真
外部に設置された水栓があり屋外での作業や手洗いにも便利です。タイル張りの壁と床でお手入れもしやすい仕様となっています。コーナー部分に設置されているため雨風の影響を抑えやすく使い勝手が良いです。
外観
落ち着いた色合いの外観が印象的です。バルコニーが各部屋に設けられ開放感があります。1階には駐車スペースが確保されており車の出し入れも便利です。しっかりとした造りのマンションです。
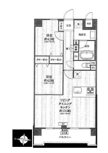
間取図/区画図
リビングダイニングキッチンは約13.5帖とゆったりとした空間です。各洋室にはクローゼットがあり収納に便利です。バルコニーに面したリビングは明るい印象です。
その他現地写真
外観は落ち着いた色合いで周囲の環境と調和しています。清潔感のある共用部分が印象的です。建物はしっかりとした造りで安心感があります。階段が広く昇り降りも快適です。
エントランス
エントランスは重厚感のある石造りで落ち着いた雰囲気が漂います。ガラス扉が設置されており開放感も感じられます。車寄せスペースも隣接しているため利便性があります。グリーンのアクセントも印象的です。
エントランス
エントランスはガラス扉と石調の壁面が特徴です。明るく開放的な空間が広がっています。共用部の清掃も行き届いている印象です。大きなガラス扉が視認性を高めています。
その他共有部
便利な宅配ボックス付きで不在時でも荷物の受け取りができます。セキュリティ対策としてカメラも設置されています。エントランスは明るく清潔感があります。管理の行き届いた共用部が特徴です。
ロビー
明るいエントランスロビーは清潔感があります。窓口やモニターが設置されており利便性が感じられます。大きなガラス扉が開放的な印象を与えています。観葉植物が設置されているため雰囲気に彩りが加わっています。
その他
スタイリッシュなデザインのモニター付きインターホンが設置されています。訪問者の確認がしやすいカメラ付き仕様です。操作パネルも見やすく使い勝手に配慮されています。
その他共有部
エントランス横に設けられた専用スペースがあり使い勝手の良さが感じられます。落ち着いた外観が特徴的です。建物全体がシンプルなデザインで統一されています。
その他共有部
共用部には複数の郵便ポストが設置されており各住戸ごとに郵便物の受け取りが可能です。設備がしっかり配置されているため日々の利用にも便利です。清潔感のあるタイル張りの壁面が特徴的です。
その他共有部
建物の外壁に設置されたシンプルな立水栓です。メンテナンスがしやすい位置にありさまざまな用途に利用可能です。周囲はタイル張りで清掃がしやすい設計となっています。壁際のスペースを有効活用しています。
その他
敷地内にゴミ集積所が設置されており分別や収集にも便利です。清潔感のあるネット仕様でゴミの飛散防止にも配慮されています。屋外に設置されているため出し入れもスムーズです。
駐車場
建物の一部が屋根付きになっている駐車場です。敷地内に複数台分の駐車スペースが確保されています。舗装も整備されており車の出し入れがしやすい構造です。建物内に接しているため雨天でも乗り降りが便利です。
その他共有部
屋内型の駐輪場で自転車やバイクをしっかりと保管できます。ラック付きなので収納も効率的です。コンクリート壁で防犯面にも配慮されています。空調設備も設置されており快適な利用が可能です。
その他現地写真
建物外観は落ち着いた色合いで周囲の街並みに調和しています。道路幅が広く車の出入りも安心です。自転車置き場や緑も設けられています。エントランスも分かりやすい位置にあり使い勝手が良さそうです。
その他現地写真
建物内に設置された駐輪場は複数台の自転車やバイクをしっかり収納できます。ラック式のため駐輪がしやすいです。屋根付きで雨の日も安心してご利用いただけます。スペースの広さもポイントです。
その他共有部
建物の敷地内に設置された専用のゴミ置き場です。丈夫なメッシュで囲まれているため動物によるゴミの散乱を防ぎやすいです。敷地の一角に配置されていて道路からもアクセスしやすく便利です。
その他共有部
エントランスに設置された宅配ボックスが便利です。壁や床は清潔感があり管理の行き届いた共用スペースです。防犯カメラも設置されているので安心感があります。
その他設備
スタイリッシュなデザインのモニター付きインターホンが設置されています。来訪者を確認できるので安心感が得られます。壁にすっきりと取り付けられており見た目もスマートです。
その他共有部
エントランス付近に便利なゴミ集積所が設置されています。建物と一体感のあるデザインで清潔感が保たれています。扉付きで外から中が見えにくい構造です。管理がしやすい位置にあり使い勝手の良さが感じられます。
その他現地写真
外部に設置された水栓があり屋外での作業や手洗いにも便利です。タイル張りの壁と床でお手入れもしやすい仕様となっています。コーナー部分に設置されているため雨風の影響を抑えやすく使い勝手が良いです。
駐車場
建物のすぐ近くに駐車スペースが設けられており天候に左右されにくい造りです。駐車場は屋根付きで車の保護にも配慮されています。駐車位置もフラットで出入りがしやすい設計となっています。
間取図/区画図
リビングダイニングキッチンは約13.5帖とゆったりとした空間です。各洋室にはクローゼットがあり収納に便利です。バルコニーに面したリビングは明るい印象です。
外観
落ち着いた色合いの外観が印象的です。バルコニーが各部屋に設けられ開放感があります。1階には駐車スペースが確保されており車の出し入れも便利です。しっかりとした造りのマンションです。
その他現地写真
外観は落ち着いた色合いで周囲の環境と調和しています。清潔感のある共用部分が印象的です。建物はしっかりとした造りで安心感があります。階段が広く昇り降りも快適です。
エントランス
エントランスは重厚感のある石造りで落ち着いた雰囲気が漂います。ガラス扉が設置されており開放感も感じられます。車寄せスペースも隣接しているため利便性があります。グリーンのアクセントも印象的です。
エントランス
エントランスはガラス扉と石調の壁面が特徴です。明るく開放的な空間が広がっています。共用部の清掃も行き届いている印象です。大きなガラス扉が視認性を高めています。
その他共有部
便利な宅配ボックス付きで不在時でも荷物の受け取りができます。セキュリティ対策としてカメラも設置されています。エントランスは明るく清潔感があります。管理の行き届いた共用部が特徴です。
ロビー
明るいエントランスロビーは清潔感があります。窓口やモニターが設置されており利便性が感じられます。大きなガラス扉が開放的な印象を与えています。観葉植物が設置されているため雰囲気に彩りが加わっています。
その他
スタイリッシュなデザインのモニター付きインターホンが設置されています。訪問者の確認がしやすいカメラ付き仕様です。操作パネルも見やすく使い勝手に配慮されています。
その他共有部
エントランス横に設けられた専用スペースがあり使い勝手の良さが感じられます。落ち着いた外観が特徴的です。建物全体がシンプルなデザインで統一されています。
その他共有部
共用部には複数の郵便ポストが設置されており各住戸ごとに郵便物の受け取りが可能です。設備がしっかり配置されているため日々の利用にも便利です。清潔感のあるタイル張りの壁面が特徴的です。
その他共有部
建物の外壁に設置されたシンプルな立水栓です。メンテナンスがしやすい位置にありさまざまな用途に利用可能です。周囲はタイル張りで清掃がしやすい設計となっています。壁際のスペースを有効活用しています。
その他
敷地内にゴミ集積所が設置されており分別や収集にも便利です。清潔感のあるネット仕様でゴミの飛散防止にも配慮されています。屋外に設置されているため出し入れもスムーズです。
駐車場
建物の一部が屋根付きになっている駐車場です。敷地内に複数台分の駐車スペースが確保されています。舗装も整備されており車の出し入れがしやすい構造です。建物内に接しているため雨天でも乗り降りが便利です。
その他共有部
屋内型の駐輪場で自転車やバイクをしっかりと保管できます。ラック付きなので収納も効率的です。コンクリート壁で防犯面にも配慮されています。空調設備も設置されており快適な利用が可能です。
その他現地写真
建物外観は落ち着いた色合いで周囲の街並みに調和しています。道路幅が広く車の出入りも安心です。自転車置き場や緑も設けられています。エントランスも分かりやすい位置にあり使い勝手が良さそうです。
その他現地写真
建物内に設置された駐輪場は複数台の自転車やバイクをしっかり収納できます。ラック式のため駐輪がしやすいです。屋根付きで雨の日も安心してご利用いただけます。スペースの広さもポイントです。
その他共有部
建物の敷地内に設置された専用のゴミ置き場です。丈夫なメッシュで囲まれているため動物によるゴミの散乱を防ぎやすいです。敷地の一角に配置されていて道路からもアクセスしやすく便利です。
その他共有部
エントランスに設置された宅配ボックスが便利です。壁や床は清潔感があり管理の行き届いた共用スペースです。防犯カメラも設置されているので安心感があります。
その他設備
スタイリッシュなデザインのモニター付きインターホンが設置されています。来訪者を確認できるので安心感が得られます。壁にすっきりと取り付けられており見た目もスマートです。
その他共有部
エントランス付近に便利なゴミ集積所が設置されています。建物と一体感のあるデザインで清潔感が保たれています。扉付きで外から中が見えにくい構造です。管理がしやすい位置にあり使い勝手の良さが感じられます。
その他現地写真
外部に設置された水栓があり屋外での作業や手洗いにも便利です。タイル張りの壁と床でお手入れもしやすい仕様となっています。コーナー部分に設置されているため雨風の影響を抑えやすく使い勝手が良いです。
駐車場
建物のすぐ近くに駐車スペースが設けられており天候に左右されにくい造りです。駐車場は屋根付きで車の保護にも配慮されています。駐車位置もフラットで出入りがしやすい設計となっています。
横浜市立師岡小学校(小学校) 735m
横浜市立大曽根小学校(小学校) 1102m
横浜市立樽町中学校(中学校) 589m
まいばすけっと港北樽町店(スーパー) 343m
フードワン綱島店(スーパー) 732m
セブンイレブン横浜樽町店(コンビニ) 402m
ハックドラッグライフガーデン綱島店(ドラッグストア) 851m
医療法人三星会大倉山記念病院(病院) 596m
トレッサ横浜(ショッピング施設) 1310m
スマートフォン版の表示に切り替える