建築中の外観が確認できる一枚です。進行中の工事状況をしっかりと見ることができます。新しい住まいとしての期待感も高まります。周囲との調和が感じられる現場の様子です。
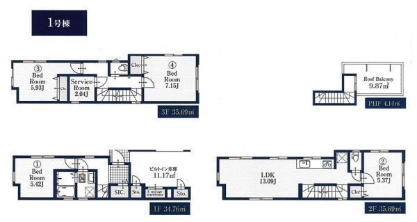
三階建てで各階ごとに異なる部屋配置が特徴的です。ルーフバルコニーもあり開放感を演出しています。サービスルームや複数のベッドルームなど用途に合わせた使い分けができます。
道路に面した区画図となっておりセットバック部分が明示されています。駐車スペースも確保されており生活動線も考えやすい配置です。区画の形状や面積が図で分かりやすく表示されています。
現地写真は前面道路の様子をしっかりと確認でき道路幅や周辺環境も一目で把握できます。建築中の現場の様子もご覧いただけます。敷地前の車両の停車状況も確認しやすい一枚です。
建築中の外観が確認できる現場写真です。建物の構造や骨組みの一部がしっかり確認できます。仮設足場や養生シートが設置されているため現在工事が進行中であることがわかります。
前面道路が広く車両の出入りもスムーズに行えます。現地は建設中で周辺環境も整っています。建物の位置や周囲の建物との距離感が分かりやすい写真です。静かな住宅街に位置しており落ち着いた雰囲気です。
前面道路は整備されており車の通行もスムーズです。現地は工事が進んでいる様子が確認できます。周辺には低層の建物が並び道路幅も確保されています。交通量も適度で安心して通行できます。
建築中の外観がしっかりと確認できる写真です。工事用シートで安全に配慮されています。完成後のイメージが膨らみます。骨組みの状態を直接ご覧いただけます。安心感のある施工現場です。
建設中の外観がしっかりと確認できます。足場やネットで安全対策が施されています。建物のフレーム構造が見え進行状況がうかがえます。工事現場の様子が写真から伝わります。
前面道路を含む現地写真です。敷地前の道路幅員がよくわかります。周辺の建築状況もご覧いただけます。落ち着いた印象の路地です。静かな住環境を感じられる現地です。
現在建築中の物件ですので新築住宅をお探しの方におすすめです。工事現場は清潔に管理されています。防護ネットが設置されており安全に配慮されています。建築の進捗状況を確認いただけます。
前面道路は広めで車両の通行がしやすい印象です。周囲には住宅が立ち並び落ち着いた雰囲気が漂っています。青空が広がり日当たりも良好です。道路には自転車用のラインも整備されています。
現地は住宅街の一角に位置し落ち着いた雰囲気が広がっています。前面道路は車両の通行が可能で日常のアクセスにも配慮されています。周囲は新しい建物が並び発展の様子が感じられます。
建築中の物件で構造部分がしっかりと確認できます。住宅街の一角に位置しており前面道路も整っています。周囲は低層の建物が多く落ち着いた雰囲気です。工事用車両が作業の様子を伝えます。
前面道路の幅がしっかり確保されており車両や自転車の通行にも配慮されています。建物は現在工事中で完成が楽しみな雰囲気です。周囲には住宅が建ち並び落ち着いた環境が感じられます。
前面道路は車の通行もしやすい幅を確保しています。周辺は住宅が建ち並ぶ落ち着いた環境です。現地の建物は工事中ですが周囲の街並みに調和しています。建物前には自転車なども置くスペースがあります。
建築中の物件で新たな暮らしをスタートできる準備が進んでいます。外観はしっかりと足場が組まれ安全面にも配慮されています。周囲には住宅が立ち並び街並みも落ち着いています。将来的な完成が楽しみな現場です。
現地は前面道路が整備されておりアクセスもスムーズに行えます。周辺の建物との距離感が確保されており安心感があります。道路幅も適度で車両の通行もしやすい環境です。
前面道路は見通しが良く車や自転車の通行もスムーズに行えます。道路幅に余裕があり歩道も整備されています。周辺には住宅や建物が並んでおり周囲の様子も確認しやすい現地写真です。
現地写真から前面道路が舗装されている様子が確認できます。周囲には住宅が立ち並び電柱や配線なども整備されています。建築中の建物が見え周辺環境の様子も把握しやすい写真です。
洋服などをすっきり収納できるクローゼットが備わっています。お部屋の整理整頓に便利です。収納スペースが確保されているので室内を広く使えます。収納がしやすい設計です。
シューズやゴルフバッグなど複数のアイテムがすっきり収納できるスペースです。靴の種類や大きさを問わず使いやすい設計となっています。玄関まわりの整理整頓に役立ちます。収納スペースが充実しています。
浴室に窓があるため換気がしやすく快適にご利用いただけます。自然光が差し込みやすい設計です。毎日のバスタイムがより明るく感じられます。窓付きで空気の入れ替えもスムーズです。
トイレが2カ所設けられているため快適にご利用いただけます。各階にトイレがあり利便性が高いです。複数人での利用にも便利な設備です。来客時も安心してご案内できます。
スーパーまで徒歩10分以内の立地です。日々のお買い物が快適な距離感になります。急な買い出しにもアクセスしやすい環境です。毎日の暮らしが便利になります。お買い物の負担を軽減できます。



東南角地!前面道路幅員約7mにつき、車庫入れ楽々です!LDK+5部屋の3階建て新築一戸建住宅!2路線駅利用可!目の前にコンビニが有り、急なお買物に大変便利です!
南武線 矢向駅 徒歩 18分
横須賀線 新川崎駅 徒歩 22分
南武線 鹿島田駅 徒歩 25分