シンプルで落ち着いた印象の外観デザインです。広々とした敷地が確保されています。敷地前のスペースが整備されています。周囲との調和が感じられる外観です。
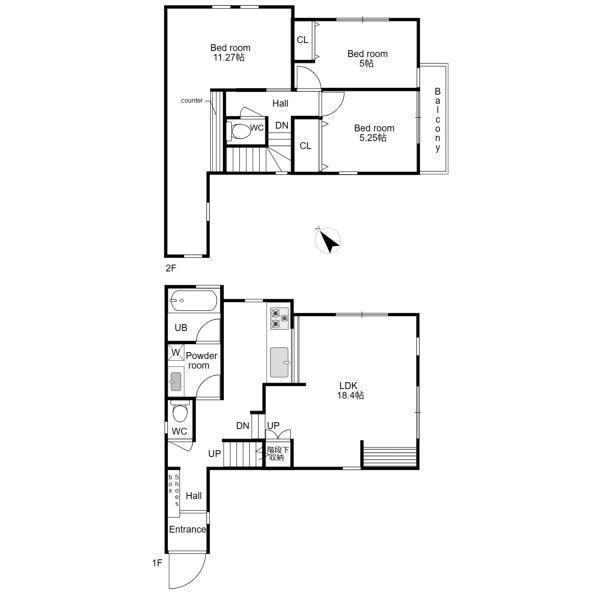
リビングダイニングは18.4帖の広さがありゆったりとした空間が広がります。2階には11.27帖のベッドルームをはじめ合計3つの部屋が設けられています。水回りが1階に集約されており動線がシンプルです。
リビングは大きな窓から光が差し込む明るく開放的な空間です。白を基調とした内装がすっきりとした印象を与えます。フラットな床面で家具の配置がしやすいリビングです。
リビングは大きな窓からたっぷりと自然光が入ります。明るく爽やかな空間が広がります。バルコニーへ直接アクセスでき開放感があります。床の色合いが室内をすっきり見せてくれます。
キッチンには収納スペースが設けられており整理整頓がしやすい造りです。明るい色合いの床と設備が空間に広がりを感じさせます。作業台もゆとりがあり使い勝手の良い形状です。
明るい色合いのフローリングとキッチン収納が統一感を演出しています。窓から自然光が入り開放的な雰囲気となっています。シンプルなデザインで清潔感があります。作業スペースも十分に確保されています。
リビングは明るい色合いのフローリングが特徴的です。大きな窓から自然光がしっかりと入ります。隣接するキッチンが使いやすい配置です。すっきりとした空間で自由度があります。段差のある設計もポイントです。
明るい洗面台・洗面所は清潔感のある空間が広がっています。収納力のある洗面台が設置されており便利に使用できます。窓があるため自然光がしっかり入ります。洗濯機置場も備わっています。
明るい照明が印象的な洗面台です。収納力のある引き出しが備わっておりすっきりと整理しやすい設計です。シンプルなデザインで清潔感が伝わります。壁紙や床材との相性も良好です。
明るい光が差し込むバスルームです。ゆったりとした浴槽が魅力的です。壁面のパネルが清潔感を感じさせます。窓付きで換気もしやすく湿気対策にも配慮されています。毎日の快適なバスタイムが期待できます。
窓付きのトイレは換気がしやすい設計です。シンプルな内装で清潔感のある空間となっています。ペーパーホルダーやリモコンが使いやすい位置に設置されています。床材には落ち着いた色味が使われています。
白を基調とした明るい洋室で空間が広く感じられます。収納力のあるクローゼットが備わっています。シンプルな内装で家具の配置がしやすい設計です。落ち着いた雰囲気が魅力的です。
やわらかな色合いの壁と明るいフローリングが特徴の洋室です。シンプルなデザインで空間に広がりを感じられます。窓からの光が室内にしっかりと届き開放感があります。
明るい色合いのフローリングで清潔感があります。壁の色が落ち着いた雰囲気を演出しています。廊下部分も広めに設計されておりゆとりを感じられます。収納や間取りの工夫がしやすいスペースです。
白を基調としたシンプルな玄関は清潔感があります。全身ミラー付き収納が備わっており実用性も兼ね備えています。天井にはダウンライトが設置されていて明るい印象です。廊下まで統一感のあるデザインです。
広々とした駐車場が魅力の物件です。コンクリート舗装でお手入れも簡単です。敷地内に複数台分の駐車スペースが確保されています。道路からのアクセスもスムーズです。ゆったりとした敷地が印象的です。
開放感のあるバルコニーから遠くまで見渡せる眺望が広がります。空が大きく感じられるのが特徴です。高層階ならではの景色を楽しめます。日当たりや風通しの良さを感じられる空間です。
広がる青空と街並みが一望できる現地からの眺望です。遠くまで見渡せる開放感が特徴的です。暮らしの中にゆとりを感じられる景色が楽しめます。晴れた日にはより遠くまで視界が広がります。
開放的な景色が広がるバルコニーです。周囲の建物との程よい距離感があり空も広く感じます。柵が目隠しの役割を果たしておりプライベート感があります。バルコニーの床材も落ち着いた印象です。
洋室は大きな窓があり自然光がたっぷり差し込みます。壁や床は明るい色調で空間が広く見えます。レイアウトの自由度が高く家具の配置も楽しめます。シンプルなデザインが印象的です。
明るい光が差し込む洋室です。淡い色合いの壁と床が空間をすっきりとした印象に仕上げています。窓からの景色を楽しめます。天井が高く開放感のあるお部屋です。清潔感のある内装も魅力です。
シンプルなデザインのトイレ空間です。壁紙の縦ラインがすっきりとした印象を与えます。床材とのバランスも整っていて清潔感があります。ペーパーホルダーやタオル掛けも設置されています。明るい雰囲気が特徴です。
シンプルなデザインの玄関は明るい照明と落ち着いた色合いが印象的です。大容量の収納スペースが備わっており使い勝手を感じられます。すっきりとした印象の玄関ドアとミラー付きの収納が特徴です。
収納スペースが充実しており使い勝手の良さが感じられます。ミラー付きの扉が設置されているため圧迫感を和らげます。シンプルで落ち着いたデザインが空間全体と調和しています。取っ手も使いやすい形状です。
スタイリッシュなデザインの玄関が住まいの印象を引き立てます。雨除けの庇が設置されており実用性にも配慮されています。木目調の玄関ドアが落ち着いた雰囲気を演出しています。
天井に設置された冷暖房・空調設備が室内全体に快適な空気を届けます。スッキリとしたデザインで空間にも馴染みやすい仕様です。操作パネルも見やすく日常の使いやすさにも配慮されています。
壁に設置された操作パネルはシンプルなデザインで視認性に優れています。タッチボタンも配置されており日々の操作もわかりやすく行えます。モニター付きで映像確認も可能です。
デザインの門柱が目を引きます。宅配ボックスやインターホンが一体となっており機能性が感じられます。すっきりとした佇まいが玄関周りを引き締めています。
シンプルなデザインで見やすい操作パネルが設置されています。自動やエコなどの機能ボタンが備わっています。壁面にすっきりと収まる仕様です。操作性も良好なので日々の使い勝手に配慮されています。
白を基調とした清潔感のあるトイレ空間です。壁面は控えめなストライプ柄で空間にやさしい印象を与えます。温水洗浄便座付きで使い勝手に配慮された設計になっています。
白を基調としたキッチンは清潔感があり空間を広く感じさせます。上下に十分な収納スペースがあり整理整頓しやすい設計です。シンクやコンロも使いやすい配置で日々の調理をサポートします。
リビングに設置されたインターホンが室内からの来客確認を可能にします。シンプルなデザインがインテリアに調和します。使いやすい操作パネルが日々の暮らしをサポートします。



人気の東急東横線「綱島」駅「日吉」駅よりバス便有り!未入居物件!東京・横浜方面へのアクセス良好!広々LDK18.4帖!家族の会話も弾む人気の対面式キッチンです!
東急東横線 綱島駅 バス 14分 「駒岡八幡神社前」 停歩 5分
東急東横線 日吉駅 バス 12分 「鷹野大橋」 停歩 8分
横浜市営グリーンライン 日吉駅 バス 12分 「鷹野大橋」 停歩 8分
駒岡小学校 約1016m
末吉中学校 約2141m