外観イメージパースとなります。 3LDK駐車スペース有、外壁はサイディングを使用しております。
前面道路は大通りに面していない為、小さいお子様がいらっしゃるご家族様でもご安心頂ける環境となります。 また、お車の出し入れが苦手な方でも楽々です。
現地外観のお写真となります。 現地見学後に同じ売主様の完成物件のご見学、建物仕様のご説明も可能です。 皆さまのお問い合わせをお待ちしております。
同じ売主様の完成物件のリビングのお写真です。 本物件はリビング内に床暖房付きとなります。 詳細は現地にてご説明させて頂きます。
同じ売主様の完成物件のリビングのお写真です。 本物件もご家族のコミュニケーションを重視したリビングイン階段を採用致します。
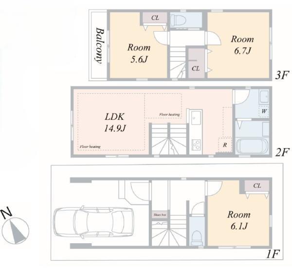
同売主様の完成物件洋室のお写真です。 本物件は1階に1部屋、3階に2部屋の間取りとなります。
同じ売主様の完成物件の収納のお写真となります。
同売主様の完成物件洋室のお写真です。 主寝室は6.7帖の収納付き。
同じ売主様の完成物件の収納のお写真となります。
同じ売主様の完成物件キッチンのお写真となります。 本物件もお写真同様「三ツ口ガスコンロ、浄水器、食洗器」と女性の欲しいを揃えた使用となります。
同売主様の完成物件のバスルームのお写真です。 浴室乾燥機、窓つきとなりメンテナンスも楽々です。
同じ売主様の完成物件洗面化粧台のお写真となります。 ハンドシャワー水栓付きですので、忙しい朝も楽々です。
同じ売主様の完成物件トイレのお写真となります。 温水洗浄機能付きとなり、1階と3階に計2箇所あります。
同じ売主様の完成物件玄関シューズボックスのお写真となります。 収納内部は高さの調節が出来るため、ブーツなどもそのまま収納出来ます。
同じ売主様の完成物件の玄関アプローチのお写真となります。
モニター付きインターフォンとなります。 本物件にも設置となります。
本物件前面道路のお写真となります。 大きな通りに面していない為、車の通りも少ない立地となり小さいお子様がいらっしゃるご家族様でもご安心頂けます。是非、現地にてご確認くださいませ。
本物件前面道路の別角度のお写真となります。 当日のご見学も可能です。 皆さまのお問い合わせをお待ちしております。
現地のお写真です。
現地のお写真です。
現地のお写真です。
現地のお写真です。
現地のお写真です。
現地のお写真です。
建築工程のお写真です。
建築工程のお写真です。



矢向駅まで徒歩10分の立地!
通勤・通学に便利な物件をお探しの方におすすめです♪
新築3LDK戸建て!矢向駅徒歩10分で通勤便利です。明るいリビングで家族団らん、ぜひご覧ください。
南武線 矢向駅 徒歩 10分
南武線 鹿島田駅 徒歩 16分
湘南新宿ライン宇都宮線 新川崎駅 徒歩 20分
古川小学校 約467m
塚越中学校 約898m