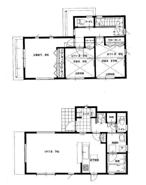
外観イメージパースとなります。 流行りのカラーを採用し、2階建3LDKロフト付の間取りとなります。
二階建てのゆとりある間取りで生活動線が考えられた設計です。収納スペースが複数あり各部屋が使いやすくレイアウトされています。リビングも広くさまざまな用途に対応できる構成となっています。
現地のお写真となります。
前面道路は大通りに面していない為、小さいお子様がいらっしゃるご家族様でもご安心頂ける環境となります。 また、お車の出し入れが苦手な方でも楽々です。
現地別角度のお写真となります。 左側が駐車スペースとなります。
現地別角度のお写真となります。
現地別角度のお写真となります。
現地別角度のお写真となります。
本物件前面道路のお写真となります。 大きな通りに面していない為、車の通りも少ない立地となり小さいお子様がいらっしゃるご家族様でもご安心頂けます。是非、現地にてご確認くださいませ。
リビングが15帖以上の広さを確保しておりゆとりある空間が魅力です。家具の配置もしやすくさまざまなライフスタイルに対応できます。来客時にも圧迫感を感じにくい広さです。
クローゼットが備わっているため収納スペースを確保できます。衣類や小物も整理しやすいです。しっかりとしたドア付きで目隠しにも活用できます。片付けがしやすく室内がすっきりと保てます。
シューズインクローゼットは靴だけでなく様々なアイテムの収納に便利です。スッキリ片付く空間が魅力です。玄関まわりを整理しやすくなります。使い勝手の良い収納スペースです。収納場所を確保しやすい仕様です。
シンプルで機能的なシステムキッチンです。効率的に収納ができるデザインとなっています。作業スペースも確保されていますので日々の料理が快適に行えます。お手入れもしやすい仕様です。
カウンターキッチンが設置されており開放感のある空間を演出します。シンプルなデザインで使いやすさに配慮されています。キッチン周りの動線もスムーズになる設計です。
キッチンに食器洗い乾燥機が備わっています。日々の家事負担を軽減できるのが特徴です。効率的な洗浄と乾燥で作業時間を短縮できます。食器の収納やお手入れも簡単に行えます。
洗面所にはシャワー機能付きのシャンプードレッサーが設置されています。窓のあるデザインが明るい印象を与えます。水回りのお手入れも快適に行えます。毎日の生活に便利な設備です。



お車駐車2台可能!(車種によります)
子育て家族におすすめです♪
バス便にて小田急線「向ヶ丘遊園駅」田園都市線「あざみ野駅」へのアクセス可能!カースペース有り!ロフトやSIC、パントリー付きなど収納豊富!留守時に便利な宅配ボックス付きです!
小田急線 向ヶ丘遊園駅 バス 23分 「菅生」 停歩 6分
東急田園都市線 あざみ野駅 バス 25分 「菅生」 停歩 6分
横浜市営ブルーライン あざみ野駅 バス 25分 「菅生」 停歩 6分