今すぐ無料の会員登録で
閲覧可能物件数が
+1,727
営業時間: 9:30~20:30
定休日: 火曜日、水曜日
建物
物件画像
周辺環境
QRコードをスキャンして携帯でもご覧になれます。

新築一戸建

新築一戸建て
1億2,900万円
    月々の返済額:34万円台
    神奈川県横浜市都筑区牛久保東2丁目
    表示住所までのルート

    横浜市営ブルーライン センター北駅 徒歩 15分 駅までのルート

    横浜市営グリーンライン センター北駅 徒歩 15分 駅までのルート

    横浜市営グリーンライン 北山田駅 徒歩 16分 駅までのルート

    NEW現地見学会おすすめ会員限定
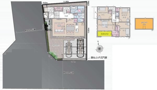
    間取り
    3LDK+S(納戸)(3SLDK)
    築年月
    2025年09月完成
    土地面積
    150.98㎡(45.67坪)[実測]
    建物面積
    120.48㎡(36.44坪)
    今すぐ会員登録する資料請求お気に入りに追加
    お問い合わせ先: 0120-540-844
    電話でお問合せする

    南西角地陽当り良好、開放感有ります!閑静な第一種低層エリア!幅員6m以上の交通量穏やかな公道に接道!並列2台駐車可能!南小庭に面したリビングは床暖房2面付です!

    お客様のご家族全員が満足される住宅を提案出来るように心がけております

    物件情報
    名称
    新築一戸建
    価格
    1億2,900万円(税込)
    権利金/保証金
    なし/なし
    所在地
    神奈川県横浜市都筑区牛久保東2丁目地図
    交通

    横浜市営ブルーライン センター北駅 徒歩 15分

    横浜市営グリーンライン センター北駅 徒歩 15分

    横浜市営グリーンライン 北山田駅 徒歩 16分

    間取り
    3LDK+S(納戸)(3SLDK)
    部屋
    1F LDK 21.0帖 、2F 洋 7.8帖 、2F 洋 6.1帖 、2F 洋 6.5帖 、2F S(納戸) 6.0帖
    建物現況
    完成済
    建物面積
    120.48㎡(36.44坪)
    土地面積
    150.98㎡(45.67坪)[実測]
    地目
    宅地
    土地権利
    所有権
    築年月
    2025年09月完成
    建物構造
    木造(W)
    建物階建
    2階建
    駐車場
    あり 2台 カースペース
    設備・条件
    床暖房 システムキッチン 浄水器 食器洗乾燥機 トイレ2ヶ所 浴室乾燥機 ウォークインクローゼット 全居室収納 床下収納 物置 TVドアホン バルコニー 24時間換気システム 日当り良好 閑静な住宅街 ガス:都市ガス 汚水:公共下水(使用可) 雑排水:公共下水(使用可) 水道:公営水道(使用可)
    都市計画
    市街化区域
    用途地域
    第一種低層住居専用地域
    建ぺい率/容積率
    40%/80%
    国土法の届出
    不要
    特記事項
    法第22条区域、緑化地域、宅地造成及び特定盛土等規制法、港北ニュータウン街づくり協議地区
    セットバック
    なし
    私道負担
    なし
    接道状況
    二方(角地) 南:幅員6.19m公道 西:幅員6.17m公道
    地域地区
    高度地区 景観法
    引渡時期
    相談
    学区

    中川小学校 約220m

    中川中学校 約310m

    備考
    ●浄水器●食器洗浄乾燥機●タンクレストイレ●屋外EVコンセント●玄関ドア電子キー●
    物件情報更新日
    2026年04月04日(物件情報更新日より14日以内に更新)
    物件コード
    85588
    取引態様
    仲介
    今すぐ会員登録する資料請求お気に入りに追加
    お問い合わせ先: 0120-540-844
    電話でお問合せする

    地図

    センチュリー21ゲットハウス
    センチュリー21ゲットハウス
    来店・案内予約はこちら
    〒223-0052
    神奈川県横浜市港北区綱島東1丁目6-3 TS吉原ビル2・3F
    0120-540-844
    営業時間:9:30~20:30 定休日:火曜日、水曜日
    ローンシミュレーション
    • {{error}}
    物件価格
    1億2,900万円
    借入予定額
    万円
    頭金
    万円
    ボーナス(1回分)
    万円
    返済期間
    ローン金利
    ※ 金利参考先:横浜銀行
    金利
    %
    毎月の支払額
    {{repayment_price}} 円
    外観
    外観
    間取図/区画図
    間取図/区画図
    外観
    横浜市立中川小学校(小学校) 220m
    横浜市立中川中学校(中学校) 310m
    徳生公園(公園) 733m
    スマートフォン版の表示に切り替える