今すぐ無料の会員登録で
閲覧可能物件数が
+1,754
営業時間: 9:30~20:30
定休日: 火曜日、水曜日

堂々とした外観が印象的な建物です。バルコニーが広く取られている点が特徴です。エントランスは屋根付きで天候の変化にも対応しやすい造りです。駐車スペースも備えられています。周辺は落ち着いた雰囲気です。

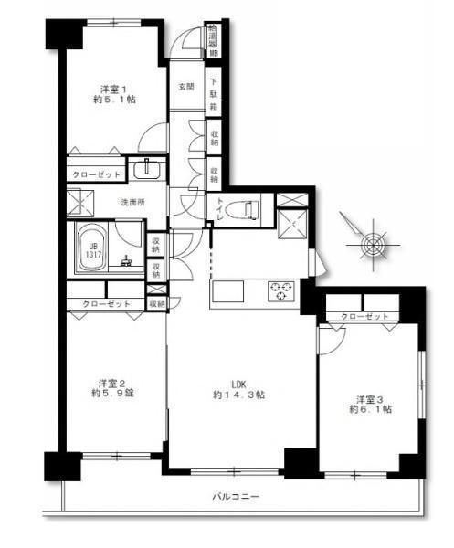
3つの洋室と広々としたLDKが特徴的な間取りです。各部屋に収納スペースがありすっきりとした住空間を実現できます。バルコニーが南向きでLDKや洋室に光が入りやすい設計です。

大きな窓からたっぷりと自然光が差し込むリビングです。天井のダウンライトが空間をやさしく照らします。バルコニーへ直接アクセスできるので開放感も感じられます。隣接するスペースとの一体感も魅力です。

リビングは広々とした空間で明るい日差しが差し込む設計です。天井にはダウンライトとシーリングライトが配置されており夜間も快適に過ごせます。キッチンとの一体感があり暮らしやすい印象を与えます。

リビングは広々とした空間で開放感があります。天井の照明がバランス良く配置され明るい雰囲気が広がります。キッチンとのつながりもスムーズで生活動線に配慮された設計です。

収納力のある洗面台が備え付けられておりすっきりとした空間が広がります。落ち着いた色合いの内装が印象的です。照明も明るく手元が見やすい設計です。開放感のある間取りで使い勝手が良い洗面スペースです。

シンプルな空間に使いやすい収納棚が設置されています。壁面にはスイッチやコンセントも備わっています。収納棚は高さがありたっぷり収納可能です。キッチンエリアとして清潔感があります。

広々とした浴室スペースで落ち着いた色調の壁面が特徴です。ワイドミラーが空間を広く見せシャワーや浴槽の使い勝手も良好です。お手入れしやすい床材と収納棚も備わっています。

明るい室内に調和するシンプルで洗練されたキッチンです。使い勝手を意識した広めの作業スペースも魅力です。窓からの自然光がよく入る環境もうれしいポイントです。収納も豊富で整理整頓しやすい仕様です。

窓から自然光が差し込む明るい雰囲気のキッチンです。ダウンライトが天井に設けられており照明も充実しています。カウンターキッチン仕様で開放感があります。コンロやシンクが使いやすく配置されています。

大きな窓から自然光がたっぷり差し込む洋室です。シンプルな内装でお好みの家具を合わせやすい空間になっています。バルコニーへの出入りもしやすく開放感があります。

窓から自然光がたっぷりと差し込む洋室です。シンプルな内装でお好みに合わせてアレンジしやすい空間となっています。収納スペースも設けられており整理整頓がしやすく便利です。

収納スペースが設置されているので整理整頓もスムーズです。操作パネルが使いやすい位置にあります。落ち着いた色合いで全体がまとめられておりシンプルな印象です。床材も手入れしやすいデザインです。

大きな窓からたっぷりと自然光が差し込む洋室です。バルコニーへのアクセスもスムーズで開放感があります。シンプルな内装がどんなインテリアにも合わせやすい空間です。落ち着いた雰囲気が魅力的です。

大きな窓からたっぷりと自然光が差し込む洋室です。間仕切りにより空間の使い分けが可能です。シンプルな内装で様々なインテリアにも調和します。バルコニーへの出入りもスムーズな設計です。

大きなクローゼットがあり整理整頓に便利です。仕切り戸を開けることで空間を広く使えます。明るい日差しが差し込む洋室です。カーペット敷きで落ち着いた雰囲気が魅力です。隣接するリビングと一体感があります。

バルコニーから広がる眺望が特徴的です。開放感のある空間で建物や景色が一望できます。日差しがしっかりと感じられる明るいバルコニーです。手すり部分がしっかりしており安心感があります。

シンプルな内装で清潔感のある玄関です。照明が明るく手元も見やすい設計となっています。ドア付近に収納スペースも備え付けられていて利便性を感じられます。落ち着いた色合いでまとまっています。

玄関には大容量の収納スペースが備え付けられており靴や小物の整理がしやすいです。扉付きで見た目もすっきりとしています。明るい光が差し込み玄関から室内まで開放感を感じられます。

シンプルなデザインで家具の配置がしやすい洋室です。窓から明るい光が差し込み落ち着いた雰囲気が広がります。清潔感のあるカーペット仕様が特長です。白を基調とした壁で空間が広く感じられます。

ナチュラルな色合いの内装で落ち着いた雰囲気を演出しています。窓にはカーテンが設置されやわらかな光が差し込みます。シンプルなデザインでレイアウトがしやすい洋室です。ドアは木目調で空間に統一感があります。

シンプルな内装で家具の配置をしやすい洋室です。扉付きのクローゼットが設けられており衣類や荷物の収納にも便利です。天井に照明が設置されているため部屋全体が明るく保たれます。

扉付きの収納スペースがしっかりと確保されています。奥行きのある棚は整理整頓に役立ちます。室内に馴染むシンプルなデザインが特徴です。可動式の棚で多様な使い方ができます。住空間をすっきり見せます。

天井のスポットライトが明るさをしっかり確保します。壁や床の色合いがすっきりとした印象です。シンプルなレイアウトで無駄のない空間設計です。開口部もあり開放的に感じられます。

リビングが大きな窓から光を取り込み室内が明るく感じられます。キッチンからリビング全体を見渡せる間取りが特長です。窓際には開放感があり外の景色も楽しめます。床には柔らかな素材が採用されています。

大きな窓から光が差し込む明るいリビングです。天井の照明が空間をすっきりと見せています。バルコニーへのアクセスも便利です。開放感があり室内を広く感じられます。

収納スペースがしっかり確保されており棚の高さを調整できるデザインです。収納内部も奥行きがあり使い勝手が考えられています。シンプルな仕上がりでインテリアにもなじみやすい収納です。

食器洗い乾燥機付きのキッチンは日々の片付けをサポートします。効率的に家事を進められる設備です。手間を軽減するポイントとして注目できます。日常の快適さを求める方にも適しています。

シンプルなデザインのシステムキッチンが設置されています。毎日の料理や後片付けがしやすい配置です。収納スペースも確保されています。水回りがすっきりした印象です。

3口コンロが設置されているので同時に複数の調理ができます。コンパクトながら機能的な設備です。料理好きの方にも扱いやすい仕様です。毎日の料理がスムーズに進みます。

浴室暖房乾燥機が付いている浴室です。天候に左右されず洗濯物を乾かせるのがうれしいポイントです。浴室内も快適な温度に保てます。カビ対策にも役立つ設備です。多機能で使い勝手が良い浴室となっています。

来訪者の姿を確認できるTVインターホンが搭載されています。操作も簡単で便利にお使いいただけます。毎日の生活をサポートする設備となっています。住まいの安心感を高めてくれます。

駅まで徒歩20分以内という便利なアクセス環境です。毎日の通勤や通学にも利用しやすい立地です。駅周辺の施設も気軽に利用できます。移動の負担を軽減したい方におすすめです。

建物
物件画像
周辺環境
QRコードをスキャンして携帯でもご覧になれます。

横浜小机西パーク・ホームズ壱番館

横浜小机西パーク・ホームズ壱番館

中古マンション
2,899万円
  • 共益費・管理費:
    17,400円
  • 修繕積立金(月額):
    31,310円
月々の返済額:7万円台
神奈川県横浜市港北区小机町
表示住所までのルート

横浜線 小机駅 徒歩 16分 駅までのルート

横浜線 鴨居駅 徒歩 26分 駅までのルート

NEW現地見学会おすすめ会員限定
間取り
3LDK(3LDK)
所在階
5階
築年月
1994年08月完成
専有面積
70.36㎡(21.28坪)[壁芯]
今すぐ会員登録する資料請求お気に入りに追加
お問い合わせ先: 0120-540-844
電話でお問合せする

南西向き!陽当り良好!前面に棟なく通風・眺望良好です!人気の角住戸!JR横浜線「小机」駅徒歩16分!新規リノベーション!収納豊富でお部屋が広く使えます!大切なペットと暮らせます!

お客様にご安心、ご満足いただけるよう精一杯務めて参ります

物件情報
名称
横浜小机西パーク・ホームズ壱番館
価格
2,899万円(税込)
共益費・管理費
17,400円
修繕積立金(月額)
31,310円
リフォーム
あり [施工時期] 2026年01月 [箇所] キッチン 浴室 トイレ 壁、天井(クロス、塗装等) 床 洗面 建具(室内ドア等)
リノベーション
あり 施工時期 2026年01月 内容 システムキッチン新規交換(食器洗い乾燥機・浄水器一体型水栓)ユニットバス新規交換(浴室乾燥機・追焚機能)洗面化粧台新規交換(シャワー水栓・ミラーキャビネット)トイレ新規交換 他
権利金/保証金
なし/なし
所在地
神奈川県横浜市港北区小机町
交通

横浜線 小机駅 徒歩 16分

横浜線 鴨居駅 徒歩 26分

間取り
3LDK(3LDK)
部屋
LDK 14.3帖 、洋 6.1帖 、洋 5.9帖 、洋 5.1帖
専有面積
70.36㎡(21.28坪)[壁芯]
築年月
1994年08月完成
建物構造
鉄筋コンクリート造(RC)
所在階/建物階建
5階 / 6階建
総戸数/販売戸数
18戸
主要採光面
南西
その他面積
バルコニー面積:10.2㎡
現況
駐車場
あり 敷地内 有料 17,000円(税込)
管理
管理形態:全部委託 管理人状況:巡回 管理会社:三井不動産レジデンシャルサービス(株)
施工会社
三平建設(株)
設備・条件
全居室収納 閑静な住宅街 日当り良好 BS受信可 バルコニー 駐輪場 エレベーター TVドアホン 角部屋 物置 照明器具 シューズボックス 追い焚き 浴室乾燥機 オートバス 洗面化粧台 シャンプードレッサー 食器洗乾燥機 浄水器 システムキッチン コンロ:ガス、三口 洗濯機置場:室内 ペット:可
土地権利
所有権
都市計画
市街化区域
用途地域
第二種住居地域
国土法の届出
不要
引渡時期
即引渡し可
学区

小机小学校 約1400m

城郷中学校 約650m

備考
●システムキッチン●食洗機●浄水器●浴室乾燥機●追い焚き●洗面化粧台●カーペット
物件情報更新日
2026年03月14日(物件情報更新日より14日以内に更新)
物件コード
85318
取引態様
仲介
建物情報
建物現況
完成済
建物名称
横浜小机西パーク・ホームズ壱番館
建物向き
南西
今すぐ会員登録する資料請求お気に入りに追加
お問い合わせ先: 0120-540-844
電話でお問合せする
センチュリー21ゲットハウス
センチュリー21ゲットハウス
来店・案内予約はこちら
〒223-0052
神奈川県横浜市港北区綱島東1丁目6-3 TS吉原ビル2・3F
0120-540-844
営業時間:9:30~20:30 定休日:火曜日、水曜日
ローンシミュレーション
  • {{error}}
物件価格
2,899万円
借入予定額
万円
頭金
万円
ボーナス(1回分)
万円
返済期間
ローン金利
※ 金利参考先:横浜銀行
金利
%
毎月の支払額
{{repayment_price}} 円

条件がよく似た物件

外観
堂々とした外観が印象的な建物です。バルコニーが広く取られている点が特徴です。エントランスは屋根付きで天候の変化にも対応しやすい造りです。駐車スペースも備えられています。周辺は落ち着いた雰囲気です。
外観
堂々とした外観が印象的な建物です。バルコニーが広く取られている点が特徴です。エントランスは屋根付きで天候の変化にも対応しやすい造りです。駐車スペースも備えられています。周辺は落ち着いた雰囲気です。
間取図/区画図
3つの洋室と広々としたLDKが特徴的な間取りです。各部屋に収納スペースがありすっきりとした住空間を実現できます。バルコニーが南向きでLDKや洋室に光が入りやすい設計です。
リビング
大きな窓からたっぷりと自然光が差し込むリビングです。天井のダウンライトが空間をやさしく照らします。バルコニーへ直接アクセスできるので開放感も感じられます。隣接するスペースとの一体感も魅力です。
リビング
リビングは広々とした空間で明るい日差しが差し込む設計です。天井にはダウンライトとシーリングライトが配置されており夜間も快適に過ごせます。キッチンとの一体感があり暮らしやすい印象を与えます。
リビング
リビングは広々とした空間で開放感があります。天井の照明がバランス良く配置され明るい雰囲気が広がります。キッチンとのつながりもスムーズで生活動線に配慮された設計です。
キッチン
収納力のある洗面台が備え付けられておりすっきりとした空間が広がります。落ち着いた色合いの内装が印象的です。照明も明るく手元が見やすい設計です。開放感のある間取りで使い勝手が良い洗面スペースです。
キッチン
シンプルな空間に使いやすい収納棚が設置されています。壁面にはスイッチやコンセントも備わっています。収納棚は高さがありたっぷり収納可能です。キッチンエリアとして清潔感があります。
浴室
広々とした浴室スペースで落ち着いた色調の壁面が特徴です。ワイドミラーが空間を広く見せシャワーや浴槽の使い勝手も良好です。お手入れしやすい床材と収納棚も備わっています。
キッチン
明るい室内に調和するシンプルで洗練されたキッチンです。使い勝手を意識した広めの作業スペースも魅力です。窓からの自然光がよく入る環境もうれしいポイントです。収納も豊富で整理整頓しやすい仕様です。
キッチン
窓から自然光が差し込む明るい雰囲気のキッチンです。ダウンライトが天井に設けられており照明も充実しています。カウンターキッチン仕様で開放感があります。コンロやシンクが使いやすく配置されています。
洋室
大きな窓から自然光がたっぷり差し込む洋室です。シンプルな内装でお好みの家具を合わせやすい空間になっています。バルコニーへの出入りもしやすく開放感があります。
洋室
窓から自然光がたっぷりと差し込む洋室です。シンプルな内装でお好みに合わせてアレンジしやすい空間となっています。収納スペースも設けられており整理整頓がしやすく便利です。
トイレ
収納スペースが設置されているので整理整頓もスムーズです。操作パネルが使いやすい位置にあります。落ち着いた色合いで全体がまとめられておりシンプルな印象です。床材も手入れしやすいデザインです。
洋室
大きな窓からたっぷりと自然光が差し込む洋室です。バルコニーへのアクセスもスムーズで開放感があります。シンプルな内装がどんなインテリアにも合わせやすい空間です。落ち着いた雰囲気が魅力的です。
洋室
大きな窓からたっぷりと自然光が差し込む洋室です。間仕切りにより空間の使い分けが可能です。シンプルな内装で様々なインテリアにも調和します。バルコニーへの出入りもスムーズな設計です。
洋室
大きなクローゼットがあり整理整頓に便利です。仕切り戸を開けることで空間を広く使えます。明るい日差しが差し込む洋室です。カーペット敷きで落ち着いた雰囲気が魅力です。隣接するリビングと一体感があります。
バルコニー
バルコニーから広がる眺望が特徴的です。開放感のある空間で建物や景色が一望できます。日差しがしっかりと感じられる明るいバルコニーです。手すり部分がしっかりしており安心感があります。
玄関
シンプルな内装で清潔感のある玄関です。照明が明るく手元も見やすい設計となっています。ドア付近に収納スペースも備え付けられていて利便性を感じられます。落ち着いた色合いでまとまっています。
玄関
玄関には大容量の収納スペースが備え付けられており靴や小物の整理がしやすいです。扉付きで見た目もすっきりとしています。明るい光が差し込み玄関から室内まで開放感を感じられます。
洋室
シンプルなデザインで家具の配置がしやすい洋室です。窓から明るい光が差し込み落ち着いた雰囲気が広がります。清潔感のあるカーペット仕様が特長です。白を基調とした壁で空間が広く感じられます。
洋室
ナチュラルな色合いの内装で落ち着いた雰囲気を演出しています。窓にはカーテンが設置されやわらかな光が差し込みます。シンプルなデザインでレイアウトがしやすい洋室です。ドアは木目調で空間に統一感があります。
洋室
シンプルな内装で家具の配置をしやすい洋室です。扉付きのクローゼットが設けられており衣類や荷物の収納にも便利です。天井に照明が設置されているため部屋全体が明るく保たれます。
収納
扉付きの収納スペースがしっかりと確保されています。奥行きのある棚は整理整頓に役立ちます。室内に馴染むシンプルなデザインが特徴です。可動式の棚で多様な使い方ができます。住空間をすっきり見せます。
キッチン
天井のスポットライトが明るさをしっかり確保します。壁や床の色合いがすっきりとした印象です。シンプルなレイアウトで無駄のない空間設計です。開口部もあり開放的に感じられます。
リビング
リビングが大きな窓から光を取り込み室内が明るく感じられます。キッチンからリビング全体を見渡せる間取りが特長です。窓際には開放感があり外の景色も楽しめます。床には柔らかな素材が採用されています。
リビング
大きな窓から光が差し込む明るいリビングです。天井の照明が空間をすっきりと見せています。バルコニーへのアクセスも便利です。開放感があり室内を広く感じられます。
収納
収納スペースがしっかり確保されており棚の高さを調整できるデザインです。収納内部も奥行きがあり使い勝手が考えられています。シンプルな仕上がりでインテリアにもなじみやすい収納です。
その他設備
食器洗い乾燥機付きのキッチンは日々の片付けをサポートします。効率的に家事を進められる設備です。手間を軽減するポイントとして注目できます。日常の快適さを求める方にも適しています。
その他設備
シンプルなデザインのシステムキッチンが設置されています。毎日の料理や後片付けがしやすい配置です。収納スペースも確保されています。水回りがすっきりした印象です。
その他設備
3口コンロが設置されているので同時に複数の調理ができます。コンパクトながら機能的な設備です。料理好きの方にも扱いやすい仕様です。毎日の料理がスムーズに進みます。
その他設備
浴室暖房乾燥機が付いている浴室です。天候に左右されず洗濯物を乾かせるのがうれしいポイントです。浴室内も快適な温度に保てます。カビ対策にも役立つ設備です。多機能で使い勝手が良い浴室となっています。
その他設備
来訪者の姿を確認できるTVインターホンが搭載されています。操作も簡単で便利にお使いいただけます。毎日の生活をサポートする設備となっています。住まいの安心感を高めてくれます。
その他設備
駅まで徒歩20分以内という便利なアクセス環境です。毎日の通勤や通学にも利用しやすい立地です。駅周辺の施設も気軽に利用できます。移動の負担を軽減したい方におすすめです。
間取図/区画図
3つの洋室と広々としたLDKが特徴的な間取りです。各部屋に収納スペースがありすっきりとした住空間を実現できます。バルコニーが南向きでLDKや洋室に光が入りやすい設計です。
外観
堂々とした外観が印象的な建物です。バルコニーが広く取られている点が特徴です。エントランスは屋根付きで天候の変化にも対応しやすい造りです。駐車スペースも備えられています。周辺は落ち着いた雰囲気です。
リビング
大きな窓からたっぷりと自然光が差し込むリビングです。天井のダウンライトが空間をやさしく照らします。バルコニーへ直接アクセスできるので開放感も感じられます。隣接するスペースとの一体感も魅力です。
リビング
リビングは広々とした空間で明るい日差しが差し込む設計です。天井にはダウンライトとシーリングライトが配置されており夜間も快適に過ごせます。キッチンとの一体感があり暮らしやすい印象を与えます。
リビング
リビングは広々とした空間で開放感があります。天井の照明がバランス良く配置され明るい雰囲気が広がります。キッチンとのつながりもスムーズで生活動線に配慮された設計です。
キッチン
収納力のある洗面台が備え付けられておりすっきりとした空間が広がります。落ち着いた色合いの内装が印象的です。照明も明るく手元が見やすい設計です。開放感のある間取りで使い勝手が良い洗面スペースです。
キッチン
シンプルな空間に使いやすい収納棚が設置されています。壁面にはスイッチやコンセントも備わっています。収納棚は高さがありたっぷり収納可能です。キッチンエリアとして清潔感があります。
浴室
広々とした浴室スペースで落ち着いた色調の壁面が特徴です。ワイドミラーが空間を広く見せシャワーや浴槽の使い勝手も良好です。お手入れしやすい床材と収納棚も備わっています。
キッチン
明るい室内に調和するシンプルで洗練されたキッチンです。使い勝手を意識した広めの作業スペースも魅力です。窓からの自然光がよく入る環境もうれしいポイントです。収納も豊富で整理整頓しやすい仕様です。
キッチン
窓から自然光が差し込む明るい雰囲気のキッチンです。ダウンライトが天井に設けられており照明も充実しています。カウンターキッチン仕様で開放感があります。コンロやシンクが使いやすく配置されています。
洋室
大きな窓から自然光がたっぷり差し込む洋室です。シンプルな内装でお好みの家具を合わせやすい空間になっています。バルコニーへの出入りもしやすく開放感があります。
洋室
窓から自然光がたっぷりと差し込む洋室です。シンプルな内装でお好みに合わせてアレンジしやすい空間となっています。収納スペースも設けられており整理整頓がしやすく便利です。
トイレ
収納スペースが設置されているので整理整頓もスムーズです。操作パネルが使いやすい位置にあります。落ち着いた色合いで全体がまとめられておりシンプルな印象です。床材も手入れしやすいデザインです。
洋室
大きな窓からたっぷりと自然光が差し込む洋室です。バルコニーへのアクセスもスムーズで開放感があります。シンプルな内装がどんなインテリアにも合わせやすい空間です。落ち着いた雰囲気が魅力的です。
洋室
大きな窓からたっぷりと自然光が差し込む洋室です。間仕切りにより空間の使い分けが可能です。シンプルな内装で様々なインテリアにも調和します。バルコニーへの出入りもスムーズな設計です。
洋室
大きなクローゼットがあり整理整頓に便利です。仕切り戸を開けることで空間を広く使えます。明るい日差しが差し込む洋室です。カーペット敷きで落ち着いた雰囲気が魅力です。隣接するリビングと一体感があります。
バルコニー
バルコニーから広がる眺望が特徴的です。開放感のある空間で建物や景色が一望できます。日差しがしっかりと感じられる明るいバルコニーです。手すり部分がしっかりしており安心感があります。
玄関
シンプルな内装で清潔感のある玄関です。照明が明るく手元も見やすい設計となっています。ドア付近に収納スペースも備え付けられていて利便性を感じられます。落ち着いた色合いでまとまっています。
玄関
玄関には大容量の収納スペースが備え付けられており靴や小物の整理がしやすいです。扉付きで見た目もすっきりとしています。明るい光が差し込み玄関から室内まで開放感を感じられます。
洋室
シンプルなデザインで家具の配置がしやすい洋室です。窓から明るい光が差し込み落ち着いた雰囲気が広がります。清潔感のあるカーペット仕様が特長です。白を基調とした壁で空間が広く感じられます。
洋室
ナチュラルな色合いの内装で落ち着いた雰囲気を演出しています。窓にはカーテンが設置されやわらかな光が差し込みます。シンプルなデザインでレイアウトがしやすい洋室です。ドアは木目調で空間に統一感があります。
洋室
シンプルな内装で家具の配置をしやすい洋室です。扉付きのクローゼットが設けられており衣類や荷物の収納にも便利です。天井に照明が設置されているため部屋全体が明るく保たれます。
収納
扉付きの収納スペースがしっかりと確保されています。奥行きのある棚は整理整頓に役立ちます。室内に馴染むシンプルなデザインが特徴です。可動式の棚で多様な使い方ができます。住空間をすっきり見せます。
キッチン
天井のスポットライトが明るさをしっかり確保します。壁や床の色合いがすっきりとした印象です。シンプルなレイアウトで無駄のない空間設計です。開口部もあり開放的に感じられます。
リビング
リビングが大きな窓から光を取り込み室内が明るく感じられます。キッチンからリビング全体を見渡せる間取りが特長です。窓際には開放感があり外の景色も楽しめます。床には柔らかな素材が採用されています。
リビング
大きな窓から光が差し込む明るいリビングです。天井の照明が空間をすっきりと見せています。バルコニーへのアクセスも便利です。開放感があり室内を広く感じられます。
収納
収納スペースがしっかり確保されており棚の高さを調整できるデザインです。収納内部も奥行きがあり使い勝手が考えられています。シンプルな仕上がりでインテリアにもなじみやすい収納です。
その他設備
食器洗い乾燥機付きのキッチンは日々の片付けをサポートします。効率的に家事を進められる設備です。手間を軽減するポイントとして注目できます。日常の快適さを求める方にも適しています。
その他設備
シンプルなデザインのシステムキッチンが設置されています。毎日の料理や後片付けがしやすい配置です。収納スペースも確保されています。水回りがすっきりした印象です。
その他設備
3口コンロが設置されているので同時に複数の調理ができます。コンパクトながら機能的な設備です。料理好きの方にも扱いやすい仕様です。毎日の料理がスムーズに進みます。
その他設備
浴室暖房乾燥機が付いている浴室です。天候に左右されず洗濯物を乾かせるのがうれしいポイントです。浴室内も快適な温度に保てます。カビ対策にも役立つ設備です。多機能で使い勝手が良い浴室となっています。
その他設備
来訪者の姿を確認できるTVインターホンが搭載されています。操作も簡単で便利にお使いいただけます。毎日の生活をサポートする設備となっています。住まいの安心感を高めてくれます。
その他設備
駅まで徒歩20分以内という便利なアクセス環境です。毎日の通勤や通学にも利用しやすい立地です。駅周辺の施設も気軽に利用できます。移動の負担を軽減したい方におすすめです。
横浜市立小机小学校(小学校) 1400m
横浜市立城郷中学校(中学校) 650m
小机幼稚園(幼稚園・保育園) 357m
エンゼル小机店(スーパー) 528m
セブンイレブン横浜小机町店(コンビニ) 410m
Fit Care DEPOT菅田店(ドラッグストア) 1363m
医療法人社団青葉会牧野記念病院(病院) 2023m
横浜東本郷郵便局(郵便局) 1379m
小机町第三公園(公園) 792m
スマートフォン版の表示に切り替える