今すぐ無料の会員登録で
閲覧可能物件数が
+1,754
営業時間: 9:30~20:30
定休日: 火曜日、水曜日

食事の後の片づけに便利な食器洗い乾燥機付き!

お料理しながら会話も楽しめるカウンターキッチン!

お料理がはかどる収納充実のシステムキッチン!

入浴時間が違うご家族に嬉しいオートバス!

雨の日のお洗濯にも安心な浴室暖房乾燥機付き!

LDKは15帖以上!ゆとりある空間で家族の時間をお過ごしいただけます!

来客者をモニターで確認できる安心のTVインターホン!

NO IMAGE
建物
物件画像
周辺環境
QRコードをスキャンして携帯でもご覧になれます。

新築一戸建

センチュリー21ゲットハウス
中村 拓海
お問い合わせ先: 0120-540-844

おすすめコメント

LDK16帖以上の広々空間!
全居室収納付きの為お部屋を広く使いたい方におすすめです♪

新築一戸建て
5,780万円
    月々の返済額:15万円台
    神奈川県横浜市神奈川区白幡西町
    表示住所までのルート

    東急東横線 東白楽駅 徒歩 6分 駅までのルート

    横浜線 東神奈川駅 徒歩 11分 駅までのルート

    京浜東北・根岸線 東神奈川駅 徒歩 11分 駅までのルート

    NEW現地見学会おすすめ会員限定
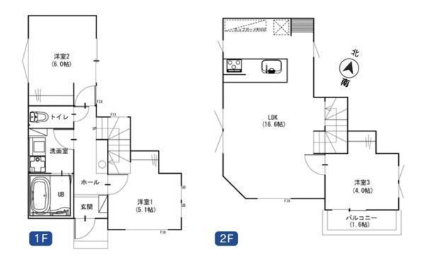
    間取り
    3LDK(3LDK)
    築年月
    2026年03月予定
    土地面積
    105.87㎡(32.02坪)[公簿]
    建物面積
    71.83㎡(21.72坪)
    今すぐ会員登録する資料請求お気に入りに追加
    お問い合わせ先: 0120-540-844
    電話でお問合せする

    東急東横線「東白楽」駅徒歩6分!京浜東北線・横浜線「東神奈川」駅徒歩11分!通勤通学に便利!南東向きで陽当り良好!家事時短が叶う設備が充実!玄関にセカンド洗面台があります!

    物件情報
    名称
    新築一戸建
    価格
    5,780万円(税込)
    権利金/保証金
    なし/なし
    所在地
    神奈川県横浜市神奈川区白幡西町地図
    交通

    東急東横線 東白楽駅 徒歩 6分

    横浜線 東神奈川駅 徒歩 11分

    京浜東北・根岸線 東神奈川駅 徒歩 11分

    間取り
    3LDK(3LDK)
    部屋
    1F 洋 6.0帖 、1F 洋 5.1帖 、2F LDK 16.6帖 、2F 洋 4.3帖
    建物現況
    建築中
    建物面積
    71.83㎡(21.72坪)
    土地面積
    105.87㎡(32.02坪)[公簿]
    地目
    宅地
    土地権利
    所有権
    築年月
    2026年03月予定
    建物構造
    木造(W)
    建物階建
    2階建
    駐車場
    あり カースペース
    建築確認番号
    第2025SBC-確01178H号
    設備・条件
    シャッター雨戸 照明器具 システムキッチン 浄水器 食器洗乾燥機 シャンプードレッサー オートバス 浴室乾燥機 シューズボックス TVドアホン バルコニー 24時間換気システム 複層ガラス ガス:都市ガス 汚水:公共下水(使用可) 水道:公営水道(使用可)
    都市計画
    市街化区域
    用途地域
    第一種低層住居専用地域
    建ぺい率/容積率
    50%/100%
    国土法の届出
    不要
    特記事項
    宅地造成及び特定盛土等規制法・土砂災害防止法
    セットバック
    あり 面積2.01㎡
    私道負担
    なし
    接道状況
    一方 東:幅員4.0m公道
    地域地区
    景観法
    引渡時期
    相談
    学区

    浦島小学校 約600m

    浦島丘中学校 約1200m

    備考
    ●食洗器●浄水器●浴室暖房乾燥機●カップボード●三面鏡洗面化粧台●宅配ボックス●
    物件情報更新日
    2026年03月13日(物件情報更新日より14日以内に更新)
    物件コード
    84535
    取引態様
    仲介
    今すぐ会員登録する資料請求お気に入りに追加
    お問い合わせ先: 0120-540-844
    電話でお問合せする

    地図

    センチュリー21ゲットハウス
    センチュリー21ゲットハウス
    来店・案内予約はこちら
    〒223-0052
    神奈川県横浜市港北区綱島東1丁目6-3 TS吉原ビル2・3F
    0120-540-844
    営業時間:9:30~20:30 定休日:火曜日、水曜日
    ローンシミュレーション
    • {{error}}
    物件価格
    5,780万円
    借入予定額
    万円
    頭金
    万円
    ボーナス(1回分)
    万円
    返済期間
    ローン金利
    ※ 金利参考先:横浜銀行
    金利
    %
    毎月の支払額
    {{repayment_price}} 円

    条件がよく似た物件

    間取図/区画図
    その他
    キッチン
    食事の後の片づけに便利な食器洗い乾燥機付き!
    キッチン
    お料理しながら会話も楽しめるカウンターキッチン!
    キッチン
    お料理がはかどる収納充実のシステムキッチン!
    浴室
    入浴時間が違うご家族に嬉しいオートバス!
    浴室
    雨の日のお洗濯にも安心な浴室暖房乾燥機付き!
    リビング
    LDKは15帖以上!ゆとりある空間で家族の時間をお過ごしいただけます!
    リビング
    来客者をモニターで確認できる安心のTVインターホン!
    間取図/区画図
    その他
    キッチン
    食事の後の片づけに便利な食器洗い乾燥機付き!
    キッチン
    お料理しながら会話も楽しめるカウンターキッチン!
    キッチン
    お料理がはかどる収納充実のシステムキッチン!
    浴室
    入浴時間が違うご家族に嬉しいオートバス!
    浴室
    雨の日のお洗濯にも安心な浴室暖房乾燥機付き!
    リビング
    LDKは15帖以上!ゆとりある空間で家族の時間をお過ごしいただけます!
    リビング
    来客者をモニターで確認できる安心のTVインターホン!
    横浜市立浦島小学校(小学校) 600m
    横浜市立浦島丘中学校(中学校) 1200m
    ニューライフ幼稚園(幼稚園・保育園) 480m
    まいばすけっと白幡南町店(スーパー) 395m
    イオンスタイル東神奈川(スーパー) 784m
    ファミリーマート白幡仲町店(コンビニ) 936m
    ハックドラッグ六角橋店(ドラッグストア) 1112m
    社会福祉法人恩賜財団済生会神奈川県病院(病院) 660m
    篠原園地(公園) 1470m
    スマートフォン版の表示に切り替える