今すぐ無料の会員登録で
閲覧可能物件数が
+1,721
営業時間: 9:30~20:30
定休日: 火曜日、水曜日

シンプルな外観が特徴のマンションです。エントランスは落ち着いた印象で安心感があります。周辺には緑も感じられる環境です。全体的にすっきりとしたデザインとなっています。建物のバルコニーも広く活用できます。

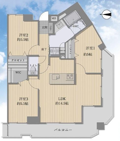
各洋室は約5帖以上の広さが確保されておりそれぞれ収納スペースも設けられています。開放感のあるLDKは約14.5帖でバルコニーへのアクセスも便利です。

大きな窓からたっぷりと自然光が差し込む空間です。ホワイトと木目の内装がすっきりとした印象を与えます。バルコニーへのアクセスがしやすく開放感があります。シンプルなレイアウトで家具の配置も考えやすいです。

グレー調の面材が印象的なキッチンです。収納スペースが豊富で使い勝手の良さがうかがえます。開放的な空間設計で全体が明るく清潔感があります。天井のダウンライトが室内を明るく照らしています。

大きな窓から明るい光が差し込む開放的なリビングです。シンプルな色合いで統一されており空間が広く感じられます。隣接するダイニングスペースとのつながりも魅力的です。窓の外には爽やかな景色が広がります。

開放感のあるキッチンはリビングと一体感があり明るい光が差し込みます。ゆったりとしたスペースが確保されており動線もスムーズです。シンプルなデザインで清潔感を感じられます。

落ち着いた木目調のアクセントパネルが印象的なバスルームです。浴槽が広々としており毎日のリフレッシュにぴったりです。明るい照明が空間をより開放的に演出しています。使い勝手の良い手すりも魅力のひとつです。

清潔感のある明るい洗面台が魅力の空間です。大型のミラーキャビネットが設置され収納力も十分に確保されています。カウンター下もすっきりとデザインされており手入れがしやすく便利です。

白を基調とした清潔感のあるトイレです。上部には収納スペースが設けられています。ペーパーホルダーやリモコンなどの設備も整っています。シンプルなデザインが印象的です。落ち着いた雰囲気の空間です。

明るい陽射しが差し込む洋室です。窓からの眺望が開放感を演出します。シンプルな内装で家具の配置がしやすい空間です。好みに合わせてアレンジできるのも魅力です。

明るい光が差し込む洋室です。大きな窓から自然光が入り室内がより広く感じられます。収納スペースも確保されており整理整頓しやすい仕様となっています。清潔感のある白基調の内装が印象的です。

大きな窓からたっぷりと陽光が差し込む洋室です。白を基調とした内装で明るく開放的な雰囲気があります。バルコニーへ直接出入りできるのも特長です。やわらかな光が室内を彩っています。

バルコニーから広がる眺望が魅力的です。天気の良い日には遠くまで見渡せる開放感があります。ガラス扉が室内とのつながりを感じさせます。屋根付きの部分があるので用途に合わせて使い分けができます。

現地からの眺望が広がり遠くまで見渡せる開放的な景色です。晴れた日には青空が心地よく広がります。周辺の街並みも見渡せて視界が良好です。バルコニーからの見晴らしが特徴的です。

明るい色合いの床と壁が印象的な洋室です。シンプルなデザインで家具の配置がしやすい空間です。クローゼットも設置されており収納に便利です。天井照明が室内全体をしっかり照らします。

清潔感のある洋室でシンプルな内装が印象的です。クローゼットは十分な収納スペースを確保しています。天井照明が明るく快適な空間を演出します。床材はナチュラルな色味で落ち着いた雰囲気が魅力です。

シンプルなデザインの収納スペースです。広々とした内部は整理しやすく活用しやすい構造です。コーナーまで使いやすい棚とハンガーパイプが設置されています。床材も落ち着いた雰囲気で清潔感があります。

タイル張りの外壁と広々とした玄関スペースが印象的です。スロープと手すりが備わっていて利用しやすい設計です。明るい入口が清潔感を感じさせます。植栽が玄関周りに彩りを添えています。

エレベーターが近く毎日の移動が快適に行えます。明るい共用部で清潔感が感じられます。ダークカラーの玄関ドアがアクセントとなりスタイリッシュな印象です。各所に設備が整っており機能性にも配慮されています。

建物内に設けられた駐車場で天候に左右されにくい仕様です。車の出し入れがしやすいスペース設計です。舗装済みで日常の車利用にも便利です。周囲にゆとりがあり車両の移動もスムーズです。

開放感のある空間が広がるリビングです。自然光がたっぷり入るので明るい雰囲気を感じられます。ダイニングとリビングが一体となっており使いやすいレイアウトです。

開放感のあるリビングは明るい光が差し込み快適な雰囲気です。キッチンとのつながりが良く家事動線もスムーズです。ナチュラルな色合いが空間に落ち着きを与えます。

キッチンは開放感のある設計でリビングやダイニングと一体感が感じられます。大きな窓から明るい光が差し込み空間全体を爽やかに演出しています。

バルコニーが広々としており開放感があります。陽当たりの良い空間で日差しを感じられます。見晴らしも良く遠くまで視界が広がります。屋根付きで雨の日も安心して使えます。日常のひとときに便利なスペースです。

洗面台は収納スペースが充実しており使いやすさが特徴です。バスルームと隣接しているため日々の支度もスムーズです。明るい雰囲気で清潔感があります。角のスペースを有効活用したデザインが際立ちます。

木目調のアクセントパネルが落ち着いた印象を与えるバスルームです。大型ミラーが空間を広く見せます。オートバス機能付きで快適です。清潔感のある白を基調とした内装です。収納棚も設けられており便利に使えます。

洗面台はシンプルで清潔感のあるデザインです。鏡裏収納がたっぷり備わっており日用品もしっかり収まります。カウンターは広さがあり小物も置きやすい仕様となっています。空間全体が明るく毎日の身支度に便利です。

建物
物件画像
周辺環境
QRコードをスキャンして携帯でもご覧になれます。

アドヴァンス獅子ヶ谷

アドヴァンス獅子ヶ谷

中古マンション
3,498万円
  • 共益費・管理費:
    11,600円
  • 修繕積立金(月額):
    12,340円
月々の返済額:9万円台
神奈川県横浜市鶴見区北寺尾6丁目
表示住所までのルート

京浜東北・根岸線 鶴見駅 バス 10分 「獅子ケ谷」 停歩 2分 駅までのルート

東急東横線 菊名駅 徒歩 24分 駅までのルート

東急東横線 菊名駅 徒歩 24分 駅までのルート

NEW現地見学会おすすめ会員限定
間取り
3LDK(3LDK)
所在階
5階
築年月
1998年12月完成
専有面積
71.99㎡(21.77坪)[壁芯]
今すぐ会員登録する資料請求お気に入りに追加
お問い合わせ先: 0120-540-844
電話でお問合せする

最上階、L型2面バルコニー!光と風に包まれるゆとりの住まい!バス停より徒歩2分で「鶴見」駅「新綱島」駅へアクセス可能!広々LDK14.5帖!家族の会話も弾む人気の対面式キッチンです!

お客様のご家族全員が満足される住宅を提案出来るように心がけております

物件情報
名称
アドヴァンス獅子ヶ谷
価格
3,498万円(税込)
共益費・管理費
11,600円
修繕積立金(月額)
12,340円
リフォーム
あり [施工時期] 2025年11月 [箇所] キッチン 浴室 トイレ 壁、天井(クロス、塗装等) 床 洗面 給湯器 建具(室内ドア等)
権利金/保証金
なし/なし
所在地
神奈川県横浜市鶴見区北寺尾6丁目地図
交通

京浜東北・根岸線 鶴見駅 バス 10分 「獅子ケ谷」 停歩 2分

東急東横線 菊名駅 徒歩 24分

東急東横線 菊名駅 徒歩 24分

間取り
3LDK(3LDK)
部屋
LDK 14.5帖 、洋 5.0帖 、洋 5.5帖 、洋 5.5帖
専有面積
71.99㎡(21.77坪)[壁芯]
築年月
1998年12月完成
建物構造
鉄筋コンクリート造(RC)
所在階/建物階建
5階 / 6階建
総戸数/販売戸数
33戸
その他面積
バルコニー面積:17.78㎡
現況
駐車場
あり 敷地内 有料 16,000円(税込)
管理
管理形態:全部委託 管理人状況:日勤 管理会社:(株)ワコー不動産管理センター
施工会社
熊谷組
設備・条件
フローリング システムキッチン 食器洗乾燥機 オートバス 追い焚き ウォークインクローゼット シューズボックス 全居室収納 最上階 角部屋 TVドアホン 防犯カメラ エレベーター 24時間換気システム 日当り良好 コンロ:ガス、一口 洗濯機置場:室内 ペット:不可
土地権利
所有権
国土法の届出
不要
引渡時期
即引渡し可
学区

獅子ヶ谷小学校 約500m

上の宮中学校 約1200m

備考
●新規フルリフォーム済み●水回り設備一新●食洗機●追焚機能●WIC●全居室収納付き●
物件情報更新日
2026年01月31日(物件情報更新日より14日以内に更新)
物件コード
84534
取引態様
仲介
建物情報
建物現況
完成済
建物名称
アドヴァンス獅子ヶ谷
建物向き
西
今すぐ会員登録する資料請求お気に入りに追加
お問い合わせ先: 0120-540-844
電話でお問合せする

地図

センチュリー21ゲットハウス
センチュリー21ゲットハウス
来店・案内予約はこちら
〒223-0052
神奈川県横浜市港北区綱島東1丁目6-3 TS吉原ビル2・3F
0120-540-844
営業時間:9:30~20:30 定休日:火曜日、水曜日
ローンシミュレーション
  • {{error}}
物件価格
3,498万円
借入予定額
万円
頭金
万円
ボーナス(1回分)
万円
返済期間
ローン金利
※ 金利参考先:横浜銀行
金利
%
毎月の支払額
{{repayment_price}} 円

条件がよく似た物件

外観
シンプルな外観が特徴のマンションです。エントランスは落ち着いた印象で安心感があります。周辺には緑も感じられる環境です。全体的にすっきりとしたデザインとなっています。建物のバルコニーも広く活用できます。
エントランス
タイル張りの外壁と広々とした玄関スペースが印象的です。スロープと手すりが備わっていて利用しやすい設計です。明るい入口が清潔感を感じさせます。植栽が玄関周りに彩りを添えています。
その他共有部
エレベーターが近く毎日の移動が快適に行えます。明るい共用部で清潔感が感じられます。ダークカラーの玄関ドアがアクセントとなりスタイリッシュな印象です。各所に設備が整っており機能性にも配慮されています。
外観
シンプルな外観が特徴のマンションです。エントランスは落ち着いた印象で安心感があります。周辺には緑も感じられる環境です。全体的にすっきりとしたデザインとなっています。建物のバルコニーも広く活用できます。
間取図/区画図
各洋室は約5帖以上の広さが確保されておりそれぞれ収納スペースも設けられています。開放感のあるLDKは約14.5帖でバルコニーへのアクセスも便利です。
リビング
大きな窓からたっぷりと自然光が差し込む空間です。ホワイトと木目の内装がすっきりとした印象を与えます。バルコニーへのアクセスがしやすく開放感があります。シンプルなレイアウトで家具の配置も考えやすいです。
キッチン
グレー調の面材が印象的なキッチンです。収納スペースが豊富で使い勝手の良さがうかがえます。開放的な空間設計で全体が明るく清潔感があります。天井のダウンライトが室内を明るく照らしています。
リビング
大きな窓から明るい光が差し込む開放的なリビングです。シンプルな色合いで統一されており空間が広く感じられます。隣接するダイニングスペースとのつながりも魅力的です。窓の外には爽やかな景色が広がります。
キッチン
開放感のあるキッチンはリビングと一体感があり明るい光が差し込みます。ゆったりとしたスペースが確保されており動線もスムーズです。シンプルなデザインで清潔感を感じられます。
浴室
落ち着いた木目調のアクセントパネルが印象的なバスルームです。浴槽が広々としており毎日のリフレッシュにぴったりです。明るい照明が空間をより開放的に演出しています。使い勝手の良い手すりも魅力のひとつです。
洗面室
清潔感のある明るい洗面台が魅力の空間です。大型のミラーキャビネットが設置され収納力も十分に確保されています。カウンター下もすっきりとデザインされており手入れがしやすく便利です。
トイレ
白を基調とした清潔感のあるトイレです。上部には収納スペースが設けられています。ペーパーホルダーやリモコンなどの設備も整っています。シンプルなデザインが印象的です。落ち着いた雰囲気の空間です。
洋室
明るい陽射しが差し込む洋室です。窓からの眺望が開放感を演出します。シンプルな内装で家具の配置がしやすい空間です。好みに合わせてアレンジできるのも魅力です。
洋室
明るい光が差し込む洋室です。大きな窓から自然光が入り室内がより広く感じられます。収納スペースも確保されており整理整頓しやすい仕様となっています。清潔感のある白基調の内装が印象的です。
洋室
大きな窓からたっぷりと陽光が差し込む洋室です。白を基調とした内装で明るく開放的な雰囲気があります。バルコニーへ直接出入りできるのも特長です。やわらかな光が室内を彩っています。
バルコニー
バルコニーから広がる眺望が魅力的です。天気の良い日には遠くまで見渡せる開放感があります。ガラス扉が室内とのつながりを感じさせます。屋根付きの部分があるので用途に合わせて使い分けができます。
眺望
現地からの眺望が広がり遠くまで見渡せる開放的な景色です。晴れた日には青空が心地よく広がります。周辺の街並みも見渡せて視界が良好です。バルコニーからの見晴らしが特徴的です。
洋室
明るい色合いの床と壁が印象的な洋室です。シンプルなデザインで家具の配置がしやすい空間です。クローゼットも設置されており収納に便利です。天井照明が室内全体をしっかり照らします。
洋室
清潔感のある洋室でシンプルな内装が印象的です。クローゼットは十分な収納スペースを確保しています。天井照明が明るく快適な空間を演出します。床材はナチュラルな色味で落ち着いた雰囲気が魅力です。
収納
シンプルなデザインの収納スペースです。広々とした内部は整理しやすく活用しやすい構造です。コーナーまで使いやすい棚とハンガーパイプが設置されています。床材も落ち着いた雰囲気で清潔感があります。
エントランス
タイル張りの外壁と広々とした玄関スペースが印象的です。スロープと手すりが備わっていて利用しやすい設計です。明るい入口が清潔感を感じさせます。植栽が玄関周りに彩りを添えています。
その他共有部
エレベーターが近く毎日の移動が快適に行えます。明るい共用部で清潔感が感じられます。ダークカラーの玄関ドアがアクセントとなりスタイリッシュな印象です。各所に設備が整っており機能性にも配慮されています。
駐車場
建物内に設けられた駐車場で天候に左右されにくい仕様です。車の出し入れがしやすいスペース設計です。舗装済みで日常の車利用にも便利です。周囲にゆとりがあり車両の移動もスムーズです。
リビング
開放感のある空間が広がるリビングです。自然光がたっぷり入るので明るい雰囲気を感じられます。ダイニングとリビングが一体となっており使いやすいレイアウトです。
リビング
開放感のあるリビングは明るい光が差し込み快適な雰囲気です。キッチンとのつながりが良く家事動線もスムーズです。ナチュラルな色合いが空間に落ち着きを与えます。
キッチン
キッチンは開放感のある設計でリビングやダイニングと一体感が感じられます。大きな窓から明るい光が差し込み空間全体を爽やかに演出しています。
バルコニー
バルコニーが広々としており開放感があります。陽当たりの良い空間で日差しを感じられます。見晴らしも良く遠くまで視界が広がります。屋根付きで雨の日も安心して使えます。日常のひとときに便利なスペースです。
洗面室
洗面台は収納スペースが充実しており使いやすさが特徴です。バスルームと隣接しているため日々の支度もスムーズです。明るい雰囲気で清潔感があります。角のスペースを有効活用したデザインが際立ちます。
浴室
木目調のアクセントパネルが落ち着いた印象を与えるバスルームです。大型ミラーが空間を広く見せます。オートバス機能付きで快適です。清潔感のある白を基調とした内装です。収納棚も設けられており便利に使えます。
洗面室
洗面台はシンプルで清潔感のあるデザインです。鏡裏収納がたっぷり備わっており日用品もしっかり収まります。カウンターは広さがあり小物も置きやすい仕様となっています。空間全体が明るく毎日の身支度に便利です。
間取図/区画図
各洋室は約5帖以上の広さが確保されておりそれぞれ収納スペースも設けられています。開放感のあるLDKは約14.5帖でバルコニーへのアクセスも便利です。
外観
シンプルな外観が特徴のマンションです。エントランスは落ち着いた印象で安心感があります。周辺には緑も感じられる環境です。全体的にすっきりとしたデザインとなっています。建物のバルコニーも広く活用できます。
リビング
大きな窓からたっぷりと自然光が差し込む空間です。ホワイトと木目の内装がすっきりとした印象を与えます。バルコニーへのアクセスがしやすく開放感があります。シンプルなレイアウトで家具の配置も考えやすいです。
キッチン
グレー調の面材が印象的なキッチンです。収納スペースが豊富で使い勝手の良さがうかがえます。開放的な空間設計で全体が明るく清潔感があります。天井のダウンライトが室内を明るく照らしています。
リビング
大きな窓から明るい光が差し込む開放的なリビングです。シンプルな色合いで統一されており空間が広く感じられます。隣接するダイニングスペースとのつながりも魅力的です。窓の外には爽やかな景色が広がります。
キッチン
開放感のあるキッチンはリビングと一体感があり明るい光が差し込みます。ゆったりとしたスペースが確保されており動線もスムーズです。シンプルなデザインで清潔感を感じられます。
浴室
落ち着いた木目調のアクセントパネルが印象的なバスルームです。浴槽が広々としており毎日のリフレッシュにぴったりです。明るい照明が空間をより開放的に演出しています。使い勝手の良い手すりも魅力のひとつです。
洗面室
清潔感のある明るい洗面台が魅力の空間です。大型のミラーキャビネットが設置され収納力も十分に確保されています。カウンター下もすっきりとデザインされており手入れがしやすく便利です。
トイレ
白を基調とした清潔感のあるトイレです。上部には収納スペースが設けられています。ペーパーホルダーやリモコンなどの設備も整っています。シンプルなデザインが印象的です。落ち着いた雰囲気の空間です。
洋室
明るい陽射しが差し込む洋室です。窓からの眺望が開放感を演出します。シンプルな内装で家具の配置がしやすい空間です。好みに合わせてアレンジできるのも魅力です。
洋室
明るい光が差し込む洋室です。大きな窓から自然光が入り室内がより広く感じられます。収納スペースも確保されており整理整頓しやすい仕様となっています。清潔感のある白基調の内装が印象的です。
洋室
大きな窓からたっぷりと陽光が差し込む洋室です。白を基調とした内装で明るく開放的な雰囲気があります。バルコニーへ直接出入りできるのも特長です。やわらかな光が室内を彩っています。
バルコニー
バルコニーから広がる眺望が魅力的です。天気の良い日には遠くまで見渡せる開放感があります。ガラス扉が室内とのつながりを感じさせます。屋根付きの部分があるので用途に合わせて使い分けができます。
眺望
現地からの眺望が広がり遠くまで見渡せる開放的な景色です。晴れた日には青空が心地よく広がります。周辺の街並みも見渡せて視界が良好です。バルコニーからの見晴らしが特徴的です。
洋室
明るい色合いの床と壁が印象的な洋室です。シンプルなデザインで家具の配置がしやすい空間です。クローゼットも設置されており収納に便利です。天井照明が室内全体をしっかり照らします。
洋室
清潔感のある洋室でシンプルな内装が印象的です。クローゼットは十分な収納スペースを確保しています。天井照明が明るく快適な空間を演出します。床材はナチュラルな色味で落ち着いた雰囲気が魅力です。
収納
シンプルなデザインの収納スペースです。広々とした内部は整理しやすく活用しやすい構造です。コーナーまで使いやすい棚とハンガーパイプが設置されています。床材も落ち着いた雰囲気で清潔感があります。
エントランス
タイル張りの外壁と広々とした玄関スペースが印象的です。スロープと手すりが備わっていて利用しやすい設計です。明るい入口が清潔感を感じさせます。植栽が玄関周りに彩りを添えています。
その他共有部
エレベーターが近く毎日の移動が快適に行えます。明るい共用部で清潔感が感じられます。ダークカラーの玄関ドアがアクセントとなりスタイリッシュな印象です。各所に設備が整っており機能性にも配慮されています。
駐車場
建物内に設けられた駐車場で天候に左右されにくい仕様です。車の出し入れがしやすいスペース設計です。舗装済みで日常の車利用にも便利です。周囲にゆとりがあり車両の移動もスムーズです。
リビング
開放感のある空間が広がるリビングです。自然光がたっぷり入るので明るい雰囲気を感じられます。ダイニングとリビングが一体となっており使いやすいレイアウトです。
リビング
開放感のあるリビングは明るい光が差し込み快適な雰囲気です。キッチンとのつながりが良く家事動線もスムーズです。ナチュラルな色合いが空間に落ち着きを与えます。
キッチン
キッチンは開放感のある設計でリビングやダイニングと一体感が感じられます。大きな窓から明るい光が差し込み空間全体を爽やかに演出しています。
バルコニー
バルコニーが広々としており開放感があります。陽当たりの良い空間で日差しを感じられます。見晴らしも良く遠くまで視界が広がります。屋根付きで雨の日も安心して使えます。日常のひとときに便利なスペースです。
洗面室
洗面台は収納スペースが充実しており使いやすさが特徴です。バスルームと隣接しているため日々の支度もスムーズです。明るい雰囲気で清潔感があります。角のスペースを有効活用したデザインが際立ちます。
浴室
木目調のアクセントパネルが落ち着いた印象を与えるバスルームです。大型ミラーが空間を広く見せます。オートバス機能付きで快適です。清潔感のある白を基調とした内装です。収納棚も設けられており便利に使えます。
洗面室
洗面台はシンプルで清潔感のあるデザインです。鏡裏収納がたっぷり備わっており日用品もしっかり収まります。カウンターは広さがあり小物も置きやすい仕様となっています。空間全体が明るく毎日の身支度に便利です。
横浜市立獅子ケ谷小学校(小学校) 500m
横浜市立上の宮中学校(中学校) 1200m
寺尾幼稚園(幼稚園・保育園) 444m
sanwaトレッサ横浜店(スーパー) 1300m
セブンイレブン横浜獅子ヶ谷1丁目店(コンビニ) 280m
ローソン横浜北寺尾五丁目店(コンビニ) 540m
クリエイトエス・ディー鶴見北寺尾店(ドラッグストア) 160m
東寺尾第二クリニック(病院) 1311m
馬場花木園(公園) 1192m
スマートフォン版の表示に切り替える