今すぐ無料の会員登録で
閲覧可能物件数が
+1,702
営業時間: 9:30~20:30
定休日: 火曜日、水曜日
建物
物件画像
周辺環境
QRコードをスキャンして携帯でもご覧になれます。

新築一戸建 1号棟

センチュリー21ゲットハウス
稲田 浩憲
お問い合わせ先: 0120-540-844

おすすめコメント

大倉山駅まで徒歩12分の立地!
LDk18帖以上の広々空間!
子育て家族におすすめです♪

新築一戸建て
7,390万円
    月々の返済額:19万円台
    神奈川県横浜市港北区大曽根台
    表示住所までのルート

    東急東横線 大倉山駅 徒歩 12分 駅までのルート

    NEW現地見学会おすすめ会員限定
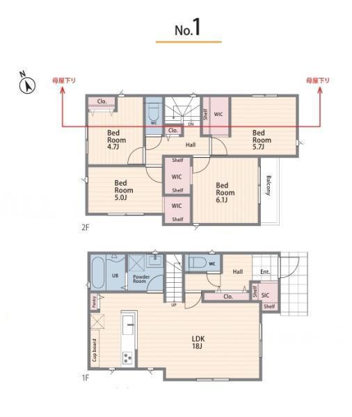
    間取り
    4LDK(4LDK)
    築年月
    2025年11月完成
    土地面積
    122.34㎡(37.0坪)[公簿]
    建物面積
    101.02㎡(30.55坪)
    今すぐ会員登録する資料請求お気に入りに追加
    お問い合わせ先: 0120-540-844
    電話でお問合せする

    東急東横線「大倉山」駅徒歩12分!アクセス良好!落ち着いた住環境!公園・小学校が近く子育て世代に嬉しい環境です!多くの靴やベビーカー等が収納できるシューズインクローゼット付きです!

    物件情報
    名称
    新築一戸建 1号棟
    価格
    7,390万円(税込)
    権利金/保証金
    なし/なし
    所在地
    神奈川県横浜市港北区大曽根台地図
    交通

    東急東横線 大倉山駅 徒歩 12分

    間取り
    4LDK(4LDK)
    部屋
    1F LDK 18.0帖 、2F 洋 6.1帖 、2F 洋 5.7帖 、2F 洋 5.0帖 、2F 洋 4.7帖
    建物現況
    完成済
    建物面積
    101.02㎡(30.55坪)
    土地面積
    122.34㎡(37.0坪)[公簿]
    地目
    宅地
    土地権利
    所有権
    築年月
    2025年11月完成
    建物構造
    木造(W)
    建物階建
    2階建
    駐車場
    あり 2台 カースペース
    設備・条件
    システムキッチン 浄水器 食器棚 食器洗乾燥機 トイレ2ヶ所 浴室乾燥機 ウォークインクローゼット バルコニー 閑静な住宅街 ガス:都市ガス 汚水:公共下水(使用可) 水道:公営水道(使用可)
    都市計画
    市街化区域
    用途地域
    第一種低層住居専用地域
    建ぺい率/容積率
    50%/100%
    国土法の届出
    不要
    特記事項
    緑化地域
    セットバック
    なし
    私道負担
    なし
    接道状況
    一方 東:幅員4.0m公道
    地域地区
    準防火地域 高度地区 宅地造成工事規制区域
    引渡時期
    相談
    学区

    大曽根小学校 約500m

    樽町中学校 約1600m

    備考
    1号棟●食洗機付システムキッチン●パントリー●カップボード●リビング階段●WIC
    物件情報更新日
    2026年03月03日(物件情報更新日より14日以内に更新)
    物件コード
    84015
    取引態様
    仲介
    今すぐ会員登録する資料請求お気に入りに追加
    お問い合わせ先: 0120-540-844
    電話でお問合せする

    地図

    センチュリー21ゲットハウス
    センチュリー21ゲットハウス
    来店・案内予約はこちら
    〒223-0052
    神奈川県横浜市港北区綱島東1丁目6-3 TS吉原ビル2・3F
    0120-540-844
    営業時間:9:30~20:30 定休日:火曜日、水曜日
    ローンシミュレーション
    • {{error}}
    物件価格
    7,390万円
    借入予定額
    万円
    頭金
    万円
    ボーナス(1回分)
    万円
    返済期間
    ローン金利
    ※ 金利参考先:横浜銀行
    金利
    %
    毎月の支払額
    {{repayment_price}} 円

    条件がよく似た物件

    外観
    その他現地写真
    外観
    間取図/区画図
    その他
    その他現地写真
    その他
    その他
    間取図/区画図
    外観
    その他
    その他現地写真
    その他
    その他
    横浜市立大曽根小学校(小学校) 500m
    横浜市立樽町中学校(中学校) 1600m
    くっくおさんぽ保育園大倉山(幼稚園・保育園) 657m
    ライフ大倉山店(スーパー) 874m
    ライフ大倉山店まで徒歩3分です!お買い物も歩いていけますね!
    セブンイレブン横浜太尾町店(コンビニ) 580m
    コンビニもすぐそこなので夜中に急な入用があっても困りません!
    スギ薬局大倉山店(ドラッグストア) 923m
    医療法人三星会大倉山記念病院(病院) 927m
    綱島本通郵便局(郵便局) 1895m
    大倉山公園(公園) 300m
    スマートフォン版の表示に切り替える