今すぐ無料の会員登録で
閲覧可能物件数が
+1,790
営業時間: 9:30~20:30
定休日: 火曜日、水曜日
建物
物件画像
周辺環境
QRコードをスキャンして携帯でもご覧になれます。

恒陽マンション

恒陽マンション

中古マンション
4,990万円
  • 共益費・管理費:
    14,800円
  • 修繕積立金(月額):
    22,200円
月々の返済額:13万円台
神奈川県横浜市神奈川区台町
表示住所までのルート

京急線 神奈川駅 徒歩 6分 駅までのルート

NEW現地見学会おすすめ会員限定
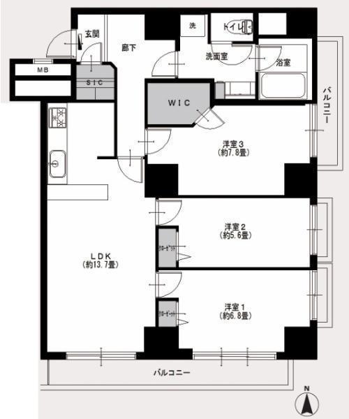
間取り
3LDK(3LDK)
所在階
3階
築年月
1972年03月完成
専有面積
80.7㎡(24.41坪)[壁芯]
今すぐ会員登録する資料請求お気に入りに追加
お問い合わせ先: 0120-540-844
電話でお問合せする

ターミナル駅「横浜」徒歩7分!都心へのアクセス良好!角住戸です!毎日の通勤・ショッピング・休日のレジャーにも便利な好立地!SIC付きで玄関スッキリ!大切なペットと暮らせます!

ペット可!都内への通勤・通学に便利な場所をお探しの方におすすめです♪

お客様にご安心、ご満足いただけるよう精一杯務めて参ります

物件情報
名称
恒陽マンション
価格
4,990万円(税込)
共益費・管理費
14,800円
修繕積立金(月額)
22,200円
リフォーム
あり [施工時期] 2025年10月 [箇所] キッチン 浴室 トイレ 壁、天井(クロス、塗装等) 床 その他 洗面 給湯器 建具(室内ドア等)
リノベーション
あり 施工時期 2025年10月 内容 システムキッチン交換・ユニットバス交換・洗面台交換・トイレ交換・全室クロス張替・全フローリング張替・全建具交換・CF張替・ 他
権利金/保証金
なし/なし
所在地
神奈川県横浜市神奈川区台町
交通

京急線 神奈川駅 徒歩 6分

間取り
3LDK(3LDK)
部屋
LDK 13.7帖 、洋 7.8帖 、洋 6.8帖 、洋 5.6帖
専有面積
80.7㎡(24.41坪)[壁芯]
築年月
1972年03月完成
建物構造
鉄骨鉄筋コンクリート造(SRC)
所在階/建物階建
3階 / 10階建
総戸数/販売戸数
54戸
その他面積
バルコニー面積:10.26㎡
現況
駐車場
あり 敷地内 有料 20,000円(税込)
管理
管理形態:全部委託 管理人状況:日勤 管理会社:株式会社ライフポート西洋
施工会社
株式会社新井組
設備・条件
フローリング 人感センサー付照明 照明器具 システムキッチン 浄水器 浴室乾燥機 追い焚き ウォークインクローゼット トランクルーム 角部屋 TVドアホン オートロック エレベーター 宅配ボックス BS受信可 CATV 洗濯機置場:室内 ペット:可
土地権利
所有権
用途地域
商業地域
引渡時期
相談
備考
●システムキッチン●浄水機能付水栓●ユニットバス●浴室乾燥機●追い焚●洗面化粧台
物件情報更新日
2025年12月05日(物件情報更新日より14日以内に更新)
物件コード
83982
取引態様
仲介
建物情報
建物現況
完成済
建物名称
恒陽マンション
今すぐ会員登録する資料請求お気に入りに追加
お問い合わせ先: 0120-540-844
電話でお問合せする

区画・住戸情報

センチュリー21ゲットハウス
センチュリー21ゲットハウス
来店・案内予約はこちら
〒223-0052
神奈川県横浜市港北区綱島東1丁目6-3 TS吉原ビル2・3F
0120-540-844
営業時間:9:30~20:30 定休日:火曜日、水曜日
ローンシミュレーション
  • {{error}}
物件価格
4,990万円
借入予定額
万円
頭金
万円
ボーナス(1回分)
万円
返済期間
ローン金利
※ 金利参考先:横浜銀行
金利
%
毎月の支払額
{{repayment_price}} 円

条件がよく似た物件

外観
外観
外観
外観
外観
エントランス
外観
間取図/区画図
リビング
リビング
キッチン
洗面室
浴室
玄関
洋室
収納
眺望
間取図/区画図
外観
リビング
リビング
キッチン
洗面室
浴室
玄関
洋室
収納
眺望
横浜市立青木小学校(小学校) 592m
横浜市立栗田谷中学校(中学校) 1223m
横浜すきっぷ保育園(幼稚園・保育園) 598m
まいばすけっと反町駅西店(スーパー) 709m
トップパルケ反町店(スーパー) 857m
ローソン金港町店(コンビニ) 627m
横浜モアーズ(ショッピング施設) 591m
社会福祉法人恩賜財団済生会神奈川県病院(病院) 1722m
横浜中央市場内郵便局(郵便局) 1661m
スマートフォン版の表示に切り替える