落ち着いた住宅街に位置する建物です。日当たりも良好で外観はシンプルなデザインです。周辺には緑もありゆったりとした環境が特徴です。角地のため開放感があります。
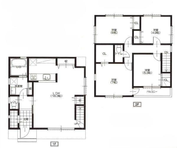
1階はLDKを中心に浴室や収納スペースなどがバランスよく配置されています。2階は4つの洋室がありそれぞれに収納スペースが設けられています。バルコニーも2階から利用でき生活動線が考えられた間取りです。
敷地全体の配置が図で確認できます。車の駐車スペースが設けられています。建物の位置も分かりやすく表示されています。方位も明示されています。前面道路幅員が4.5メートルと記載されています。
閑静な住宅街に位置し前面道路は車通りが少なく落ち着いた環境です。日当たりも良好で開放感のある立地です。道路は舗装されており歩行者にも安心感があります。
前面道路は整備されており車の通行もしやすい環境です。閑静な住宅街に位置しているため周囲の雰囲気も落ち着いています。道路幅も十分に確保されていて日当たりも良好です



■南向きの明るい4LDK新築戸建! ■快適な複層ガラス採用♪ ■システムキッチンでお料理楽々! ■浴室暖房&乾燥機付きで便利! ■ゆったりとした南面バルコニー!
京急線 井土ヶ谷駅 徒歩 26分
京急線 弘明寺駅 徒歩 30分
湘南新宿ライン宇都宮線 保土ヶ谷駅 徒歩 30分
永田小学校 約1300m
永田中学校 約588m