今すぐ無料の会員登録で
閲覧可能物件数が
+1,870
営業時間: 9:30~20:30
定休日: 火曜日、水曜日
建物
物件画像
周辺環境
QRコードをスキャンして携帯でもご覧になれます。

グランイーグルウイング川崎

グランイーグルウイング川崎

中古マンション
7,790万円
  • 共益費・管理費:
    19,700円
  • 修繕積立金(月額):
    9,350円
月々の返済額:20万円台
神奈川県川崎市川崎区本町2丁目
表示住所までのルート

東海道本線(東日本) 川崎駅 徒歩 10分 駅までのルート

京急線 京急川崎駅 徒歩 7分 駅までのルート

南武線 川崎駅 徒歩 10分 駅までのルート

NEW現地見学会おすすめ会員限定
間取り
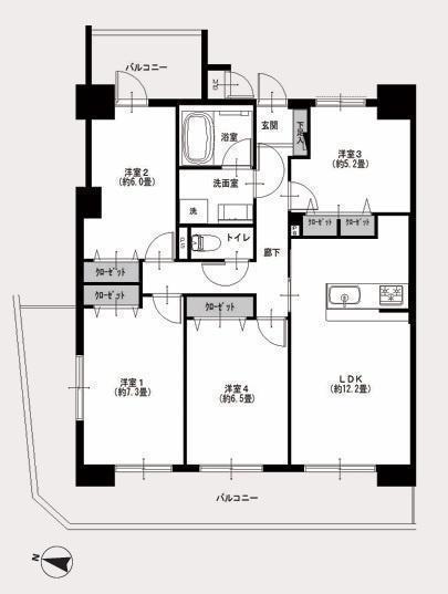
4LDK(4LDK)
所在階
3階
築年月
1999年07月完成
専有面積
82.09㎡(24.83坪)[壁芯]
今すぐ会員登録する資料請求お気に入りに追加
お問い合わせ先: 0120-540-844
電話でお問合せする

JR「川崎」駅徒歩10分!複数路線利用可!駅周辺は商業施設が充実!新規内装リノベーション!駐車場・トランクルーム専用使用権付・無償!犬・猫3匹まで飼育可能です!

お客様のより良い住まいのため、最善を尽くします。よろしくお願い致します。

物件情報
名称
グランイーグルウイング川崎
価格
7,790万円(税込)
共益費・管理費
19,700円
修繕積立金(月額)
9,350円
リフォーム
あり [施工時期] 2025年12月 [箇所] キッチン 浴室 トイレ 壁、天井(クロス、塗装等) 床 その他 洗面 給湯器 建具(室内ドア等)
権利金/保証金
なし/なし
所在地
神奈川県川崎市川崎区本町2丁目地図
交通

東海道本線(東日本) 川崎駅 徒歩 10分

京急線 京急川崎駅 徒歩 7分

南武線 川崎駅 徒歩 10分

間取り
4LDK(4LDK)
部屋
LDK 12.2帖 、洋 7.3帖 、洋 6.0帖 、洋 5.2帖 、洋 6.5帖
専有面積
82.09㎡(24.83坪)[壁芯]
築年月
1999年07月完成
建物構造
鉄筋コンクリート造(RC)
所在階/建物階建
3階 / 15階建
総戸数/販売戸数
168戸
その他面積
バルコニー面積:29.82㎡
現況
駐車場
あり 敷地内 無料
管理
管理形態:全部委託 管理人状況:日勤 管理会社:(株)リアークスファインド
施工会社
(株)森本組・佐藤工業(株)建設共同企業体
設備・条件
トランクルーム 駐輪場 宅配ボックス バイク置き場 エレベーター 防犯カメラ オートロック TVドアホン 全居室収納 照明器具 シューズボックス 追い焚き 浴室乾燥機 食器洗乾燥機 給湯 浄水器 システムキッチン 洗濯機置場:室内 ペット:可
土地権利
所有権
国土法の届出
不要
引渡時期
相談
学区

宮前小学校 約1211m

富士見中学校 約1177m

備考
●食洗機●浄水器●浴室乾燥機●追焚機能●LED照明●オートロック●モニター付インターフォン●
物件情報更新日
2025年11月07日(物件情報更新日より14日以内に更新)
物件コード
83743
取引態様
仲介
建物情報
建物現況
完成済
建物名称
グランイーグルウイング川崎
建物向き
西
今すぐ会員登録する資料請求お気に入りに追加
お問い合わせ先: 0120-540-844
電話でお問合せする

地図

センチュリー21ゲットハウス
センチュリー21ゲットハウス
来店・案内予約はこちら
〒223-0052
神奈川県横浜市港北区綱島東1丁目6-3 TS吉原ビル2・3F
0120-540-844
営業時間:9:30~20:30 定休日:火曜日、水曜日
ローンシミュレーション
  • {{error}}
物件価格
7,790万円
借入予定額
万円
頭金
万円
ボーナス(1回分)
万円
返済期間
ローン金利
※ 金利参考先:横浜銀行
金利
%
毎月の支払額
{{repayment_price}} 円

条件がよく似た物件

外観
外観
間取図/区画図
間取図/区画図
外観
川崎市立宮前小学校(小学校) 1234m
川崎市立富士見中学校(中学校) 1326m
YMCAかわさき(幼稚園・保育園) 1352m
食品館あおば東田町店(スーパー) 798m
ラゾーナ川崎プラザ(ショッピング施設) 1062m
セブンイレブン川崎戸手町店(コンビニ) 1304m
川崎駅(JR 東海道本線)(駅) 800m
京急川崎駅(京急 本線)(駅) 560m
スマートフォン版の表示に切り替える