今すぐ無料の会員登録で
閲覧可能物件数が
+1,761
営業時間: 9:30~20:30
定休日: 火曜日、水曜日
NO IMAGE
建物
物件画像
周辺環境
QRコードをスキャンして携帯でもご覧になれます。

中古一戸建

中古一戸建て
3,980万円
    月々の返済額:10万円台
    神奈川県川崎市幸区南加瀬2丁目
    表示住所までのルート

    横須賀線 新川崎駅 徒歩 22分 駅までのルート

    東急東横線 日吉駅 バス 11分 「江川町」 停歩 3分 駅までのルート

    横浜市営グリーンライン 日吉駅 バス 11分 「江川町」 停歩 3分 駅までのルート

    NEW現地見学会おすすめ会員限定
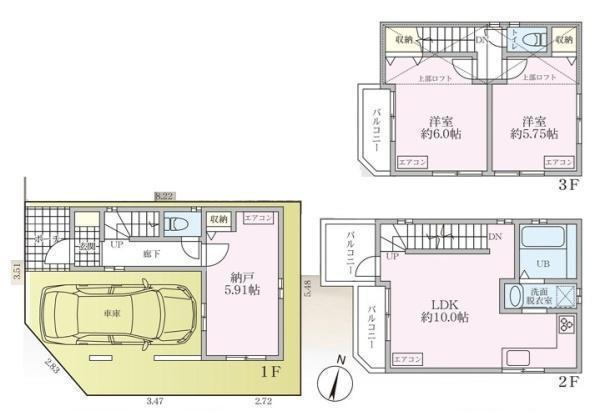
    間取り
    2LDK+S(納戸)(2SLDK)
    築年月
    2007年05月完成
    土地面積
    43.14㎡(13.04坪)[公簿]
    建物面積
    68.98㎡(20.86坪)
    今すぐ会員登録する資料請求お気に入りに追加
    お問い合わせ先: 0120-540-844
    電話でお問合せする

    全居室2面採光で陽当り・通風良好!高低差の無い平坦な地形!前面道路は交通量が少なく安心です!3階居室2部屋はロフトが付いており、様々な用途でご利用頂けます!

    お客様のご家族全員が満足される住宅を提案出来るように心がけております

    物件情報
    名称
    中古一戸建
    価格
    3,980万円(税込)
    リフォーム
    あり [施工時期] 2025年10月 [箇所] キッチン 浴室 トイレ 壁、天井(クロス、塗装等) その他 外壁 屋根 網戸・照明・キズ補修
    権利金/保証金
    なし/なし
    所在地
    神奈川県川崎市幸区南加瀬2丁目
    交通

    横須賀線 新川崎駅 徒歩 22分

    東急東横線 日吉駅 バス 11分 「江川町」 停歩 3分

    横浜市営グリーンライン 日吉駅 バス 11分 「江川町」 停歩 3分

    間取り
    2LDK+S(納戸)(2SLDK)
    部屋
    1F S(納戸) 5.9帖 、2F LDK 10.0帖 、3F 洋 6.0帖 、3F 洋 5.7帖
    建物現況
    完成済
    建物面積
    68.98㎡(20.86坪)
    土地面積
    43.14㎡(13.04坪)[公簿]
    地目
    宅地
    土地権利
    所有権
    築年月
    2007年05月完成
    建物構造
    木造(W)
    建物階建
    3階建
    駐車場
    あり ガレージ
    設備・条件
    照明器具 食器洗乾燥機 浴室乾燥機 ロフト シューズボックス 全居室収納 日当り良好 エアコン2台以上 ガス:個別プロパン 汚水:公共下水(使用可) 雑排水:公共下水(使用可) 水道:公営水道(使用可)
    都市計画
    市街化区域
    用途地域
    第一種住居地域
    建ぺい率/容積率
    60%/160%
    国土法の届出
    不要
    地勢
    平坦
    セットバック
    なし
    私道負担
    なし
    接道状況
    一方 北:幅員4.0m公道
    地域地区
    準防火地域
    引渡時期
    相談
    学区

    夢見ヶ崎小学校 約520m

    南加瀬中学校 約560m

    備考
    ●食洗機●浴室暖房乾燥機●全室照明器具新品●エアコン4台新品●ビルトインガレージ●
    物件情報更新日
    2025年11月01日(物件情報更新日より14日以内に更新)
    物件コード
    83724
    取引態様
    仲介
    今すぐ会員登録する資料請求お気に入りに追加
    お問い合わせ先: 0120-540-844
    電話でお問合せする
    センチュリー21ゲットハウス
    センチュリー21ゲットハウス
    来店・案内予約はこちら
    〒223-0052
    神奈川県横浜市港北区綱島東1丁目6-3 TS吉原ビル2・3F
    0120-540-844
    営業時間:9:30~20:30 定休日:火曜日、水曜日
    ローンシミュレーション
    • {{error}}
    物件価格
    3,980万円
    借入予定額
    万円
    頭金
    万円
    ボーナス(1回分)
    万円
    返済期間
    ローン金利
    ※ 金利参考先:横浜銀行
    金利
    %
    毎月の支払額
    {{repayment_price}} 円

    条件がよく似た物件

    間取図/区画図
    間取図/区画図
    川崎市立夢見ケ崎小学校(小学校) 520m
    川崎市立南加瀬中学校(中学校) 560m
    白山幼稚園(幼稚園・保育園) 451m
    いなげや川崎南加瀬店(スーパー) 250m
    ローソン南加瀬4丁目店(コンビニ) 130m
    スギ薬局南加瀬店(ドラッグストア) 473m
    医療法人社団正慶会栗田病院(病院) 1429m
    川崎北加瀬郵便局(郵便局) 937m
    小倉緑道(公園) 1185m
    スマートフォン版の表示に切り替える