清潔感のある外観が目を引くマンションです。植栽が整えられておりエントランス周辺も明るい雰囲気です。バルコニー付きで開放感があります。周囲の建物との距離も確保されています。
すっきりとした間取りで使いやすい空間が広がっています。居室が独立しておりプライベートを確保しやすい設計です。バルコニーに面した部屋があり採光にも配慮されています。
リビングには大きな窓が設けられており開放感を感じられます。エアコンが設置されているため季節を問わず快適に過ごせます。床は明るい色合いのフローリングで清潔感があります。
白を基調としたキッチンは清潔感があります。シンクや作業スペースが広々としているのが魅力です。収納も多く整理整頓がしやすい配置となっています。ガスコンロと換気扇も設置され使いやすい空間です。
明るい空間が広がり清潔感のあるリビングです。キッチンと一体感がありスムーズに行き来ができます。家具の配置も活用しやすいレイアウトです。ダイニングスペースも確保されています。
シンプルで清潔感のあるバスルームです。壁面のアクセントカラーがモダンな印象を与えます。洗い場も広々としており快適な空間となっております。収納棚にはバス用品をすっきり置くことが可能です。
白を基調とした洗面台が清潔感を演出しています。収納スペースが設けられており日用品の整理に役立ちます。大きめの鏡が設置されているため身支度がしやすいです。
棚が設置されており収納スペースが充実しています。壁にはタオル掛けやペーパーホルダーが整然と配置されています。温水洗浄便座が設置されており操作パネルも見やすい位置にあります。
奥行きのあるバルコニーは洗濯物を干すスペースに余裕があり使い勝手が良いです。建物との距離も確保され採光も期待できます。開放感のある雰囲気が特徴です。両側から出入り可能な仕様となっています。
シンプルな内装ですっきりとした洋室です。クローゼット付きで収納スペースも備えています。リビングとの動線が便利な設計です。照明も明るく落ち着いた雰囲気が広がっています。
洋室ならではの明るさが広がるお部屋です。収納家具も設置されていて整理整頓がしやすい造りです。天井のデザインも特徴的で開放感を感じられます。ナチュラルな色合いの床材が印象的です。
洋室はナチュラルなフローリングとシンプルな壁仕上げが特徴です。収納スペースが豊富で整理整頓しやすい設計です。天井照明が部屋全体を明るく照らします。引き戸で他の空間と仕切ることができ使い勝手も良好です。
窓から自然光が差し込む明るい洋室です。収納家具が配置しやすいシンプルな形状が魅力です。フローリング仕様でお手入れも簡単です。天井照明付きで使い勝手の良い空間です。バルコニーへのアクセスも便利です。
シンプルな内装で使いやすい洋室です。収納スペースがしっかり確保されているため荷物の整理もしやすいです。明るい照明が室内をしっかり照らします。ナチュラルなフローリングで落ち着いた雰囲気です。
天井の照明が明るく居室全体をしっかり照らします。キッチンとダイニングスペースが効率的にまとまっています。家具の配置がしやすい形状のリビングです。
ナチュラルなフローリングが明るい印象を与えるリビングです。キッチンとダイニングがひとつの空間にまとまり動線もスムーズです。収納もしっかり確保されています。家具のレイアウトもしやすい広さがあります。
玄関には収納スペースが備え付けられておりすっきりと片付けやすい設計です。コンパクトな空間ながら使い勝手の良いレイアウトとなっています。壁面が明るく清潔感のある印象です。
エントランスは植栽に囲まれており明るい雰囲気を演出しています。ガラス扉が印象的で出入りがしやすい設計です。案内表示が分かりやすく訪れる方にも配慮されています。
明るく開放感のあるエントランスが来訪者を迎えます。ガラス扉から自然光が差し込む空間です。広々としたスペースで快適に出入りできます。清潔に保たれた印象です。共用部分がゆったりしています。
敷地内に専用ゴミ置き場が設けられており敷居が高く管理しやすい仕様です。清掃が行き届いており衛生面に配慮されています。各種案内表示も見やすく整理されています。周辺環境との調和が取れたデザインです。
壁に設置された操作パネルが便利に配置されています。機能がまとめられており使い勝手に配慮されています。ボタンも見やすく日常の使用に適しています。すっきりとしたデザインが特徴です。
スッキリとした外観が印象的なマンションです。道路に面していてアクセスも便利です。敷地内には駐車スペースも確保されています。周囲には複数の建物が立ち並び落ち着いた雰囲気です。



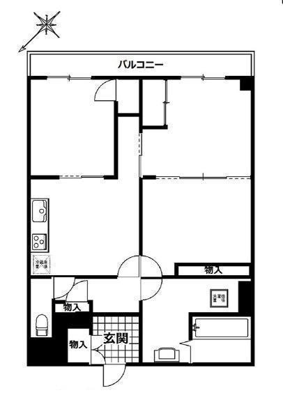
JR横浜線「大口」駅まで徒歩4分!7階建て2階部分南東向き!専有面積54.15平米3DK!周辺はスーパーなどの商業施設が多くあり、生活環境充実しております!
横浜線 大口駅 徒歩 4分
京急線 子安駅 徒歩 8分
京浜東北・根岸線 新子安駅 徒歩 15分
子安小学校 約795m
神奈川中学校 約1106m