今すぐ無料の会員登録で
閲覧可能物件数が
+1,761
営業時間: 9:30~20:30
定休日: 火曜日、水曜日
建物
物件画像
周辺環境
QRコードをスキャンして携帯でもご覧になれます。

中古一戸建

中古一戸建て
4,580万円
    月々の返済額:12万円台
    神奈川県横浜市鶴見区上末吉5丁目
    表示住所までのルート

    京浜東北・根岸線 鶴見駅 バス 14分 「上末吉郵便局前」 停歩 3分 駅までのルート

    南武線 尻手駅 バス 11分 「末吉橋西詰」 停歩 3分 駅までのルート

    NEW現地見学会おすすめ会員限定
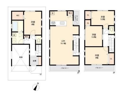
    間取り
    4LDK(4LDK)
    築年月
    2016年06月完成
    土地面積
    64.2㎡(19.42坪)[公簿]
    建物面積
    101.01㎡(30.55坪)
    今すぐ会員登録する資料請求お気に入りに追加
    お問い合わせ先: 0120-540-844
    電話でお問合せする

    JR「鶴見」駅・JR「尻手」駅行きバス便有り!バス停より徒歩」3分!リフォーム済み!2階リビング!広々LDK約19帖!家族の会話も弾む人気の対面式キッチンです!

    私自身の住宅購入経験も踏まえて、お客様に寄り添ったご提案を致します

    物件情報
    名称
    中古一戸建
    価格
    4,580万円(税込)
    リフォーム
    あり [施工時期] 2025年09月 [箇所] 壁、天井(クロス、塗装等) 床 その他 洗面 エアコン交換 他
    権利金/保証金
    なし/なし
    所在地
    神奈川県横浜市鶴見区上末吉5丁目
    交通

    京浜東北・根岸線 鶴見駅 バス 14分 「上末吉郵便局前」 停歩 3分

    南武線 尻手駅 バス 11分 「末吉橋西詰」 停歩 3分

    間取り
    4LDK(4LDK)
    部屋
    1F 洋 6.0帖 、2F LDK 19.1帖 、3F 洋 5.2帖 、3F 洋 5.2帖 、3F 洋 6.0帖
    建物現況
    完成済
    建物面積
    101.01㎡(30.55坪)
    土地面積
    64.2㎡(19.42坪)[公簿]
    地目
    宅地
    土地権利
    所有権
    築年月
    2016年06月完成
    建物構造
    木造(W)
    建物階建
    3階建
    駐車場
    あり ガレージ
    設備・条件
    トイレ2ヶ所 ウォークインクローゼット シューズボックス 全居室収納 床下収納 物置 ガス:都市ガス 汚水:公共下水(使用可) 雑排水:公共下水(使用可) 水道:公営水道(使用可) 冷暖房:エアコン
    都市計画
    市街化区域
    用途地域
    近隣商業地域
    建ぺい率/容積率
    80%/300%
    国土法の届出
    不要
    地勢
    平坦
    セットバック
    あり 面積0.79㎡
    私道負担
    あり 226.77㎡(公簿)
    接道状況
    二方 南東:幅員4.0m私道 北西:幅員1.9m公道
    地域地区
    準防火地域
    引渡時期
    相談
    学区

    上末吉小学校 約560m

    末吉中学校 約1440m

    備考
    ●カーポート1台●WIC●床下収納●全居室収納付●リビング階段●3面バルコニー●
    物件情報更新日
    2025年10月28日(物件情報更新日より14日以内に更新)
    物件コード
    83602
    取引態様
    仲介
    今すぐ会員登録する資料請求お気に入りに追加
    お問い合わせ先: 0120-540-844
    電話でお問合せする
    センチュリー21ゲットハウス
    センチュリー21ゲットハウス
    来店・案内予約はこちら
    〒223-0052
    神奈川県横浜市港北区綱島東1丁目6-3 TS吉原ビル2・3F
    0120-540-844
    営業時間:9:30~20:30 定休日:火曜日、水曜日
    ローンシミュレーション
    • {{error}}
    物件価格
    4,580万円
    借入予定額
    万円
    頭金
    万円
    ボーナス(1回分)
    万円
    返済期間
    ローン金利
    ※ 金利参考先:横浜銀行
    金利
    %
    毎月の支払額
    {{repayment_price}} 円

    条件がよく似た物件

    外観
    外観
    間取図/区画図
    リビング
    キッチン
    浴室
    トイレ
    洋室
    洋室
    洋室
    洋室
    間取図/区画図
    外観
    リビング
    キッチン
    浴室
    トイレ
    洋室
    洋室
    洋室
    洋室
    横浜市立上末吉小学校(小学校) 560m
    横浜市立末吉中学校(中学校) 1440m
    三ツ池幼稚園(幼稚園・保育園) 480m
    上末吉白百合保育園(幼稚園・保育園) 480m
    まいばすけっと上末吉5丁目店(スーパー) 320m
    サミットストアクロスガーデン川崎店(スーパー) 724m
    セブンイレブン横浜上末吉3丁目店(コンビニ) 185m
    ドラッグセガミクロスガーデン川崎店(ドラッグストア) 721m
    小倉アベリア公園(公園) 607m
    スマートフォン版の表示に切り替える