今すぐ無料の会員登録で
閲覧可能物件数が
+1,700
営業時間: 9:30~20:30
定休日: 火曜日、水曜日
建物
物件画像
周辺環境
QRコードをスキャンして携帯でもご覧になれます。

クリオ新子安七番館

クリオ新子安七番館

中古マンション
4,898万円
  • 共益費・管理費:
    13,090円
  • 修繕積立金(月額):
    11,050円
月々の返済額:12万円台
神奈川県横浜市神奈川区大口通
表示住所までのルート

京急線 子安駅 徒歩 4分 駅までのルート

横浜線 大口駅 徒歩 9分 駅までのルート

京浜東北・根岸線 新子安駅 徒歩 13分 駅までのルート

NEW現地見学会おすすめ会員限定
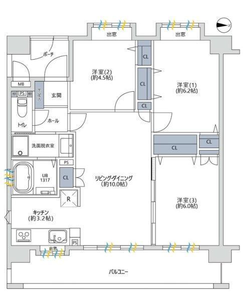
間取り
3LDK(3LDK)
所在階
2階
築年月
1999年06月完成
専有面積
63.86㎡(19.31坪)[壁芯]
今すぐ会員登録する資料請求お気に入りに追加
お問い合わせ先: 0120-540-844
電話でお問合せする

京急本線「子安」駅徒歩4分!JR横浜線「大口」駅徒歩9分!京浜東北線「新子安」駅徒歩13分!通勤・通学に便利です!新規リフォーム済!各室に収納付きでお部屋が広く使えます!

子安駅まで徒歩5分の立地!
子育て家族におすすめです♪

お客様にご安心、ご満足いただけるよう精一杯務めて参ります

物件情報
名称
クリオ新子安七番館
価格
4,898万円(税込)
共益費・管理費
13,090円
修繕積立金(月額)
11,050円
リフォーム
あり [施工時期] 2025年08月 [箇所] トイレ 床 キッチン 浴室 トイレ 壁、天井(クロス、塗装等) 床 洗面 建具(室内ドア等)
リノベーション
あり 施工時期 2025年08月 内容 システムキッチン新規交換・浴室:ユニットバス新規交換・洗面化粧台新規交換・洗浄機能付トイレ新規交換 他
権利金/保証金
なし/なし
所在地
神奈川県横浜市神奈川区大口通地図
交通

京急線 子安駅 徒歩 4分

横浜線 大口駅 徒歩 9分

京浜東北・根岸線 新子安駅 徒歩 13分

間取り
3LDK(3LDK)
部屋
LD 10.0帖 、K 3.2帖 、洋 6.2帖 、洋 6.0帖 、洋 4.5帖
専有面積
63.86㎡(19.31坪)[壁芯]
築年月
1999年06月完成
建物構造
鉄筋コンクリート造(RC)
所在階/建物階建
2階 / 7階建
総戸数/販売戸数
30戸
その他面積
バルコニー面積:12.45㎡
現況
駐車場
あり(空きなし)
管理
管理形態:全部委託 管理人状況:日勤 管理会社:明和地所コミュニティ株式会社
施工会社
佐藤工業(株)
設備・条件
フローリング 人感センサー付照明 照明器具 システムキッチン シャンプードレッサー 出窓 シューズボックス 物置 オートロック エレベーター 宅配ボックス バルコニー 洗濯機置場:室内 冷暖房:エアコン ペット:不可
土地権利
所有権
都市計画
市街化区域
用途地域
近隣商業地域
国土法の届出
不要
引渡時期
相談
学区

子安小学校 約739m

神奈川中学校 約1172m

備考
●システムキッチン●ユニットバス●シャワー付洗面化粧台●エアコン一基付き●下足入
物件情報更新日
2025年10月18日(物件情報更新日より14日以内に更新)
物件コード
83429
取引態様
仲介
建物情報
建物現況
完成済
建物名称
クリオ新子安七番館
建物向き
今すぐ会員登録する資料請求お気に入りに追加
お問い合わせ先: 0120-540-844
電話でお問合せする

地図

区画・住戸情報

センチュリー21ゲットハウス
センチュリー21ゲットハウス
来店・案内予約はこちら
〒223-0052
神奈川県横浜市港北区綱島東1丁目6-3 TS吉原ビル2・3F
0120-540-844
営業時間:9:30~20:30 定休日:火曜日、水曜日
ローンシミュレーション
  • {{error}}
物件価格
4,898万円
借入予定額
万円
頭金
万円
ボーナス(1回分)
万円
返済期間
ローン金利
※ 金利参考先:横浜銀行
金利
%
毎月の支払額
{{repayment_price}} 円

条件がよく似た物件

外観
外観
間取図/区画図
リビング
キッチン
洋室
浴室
洗面室
間取図/区画図
外観
リビング
キッチン
洋室
浴室
洗面室
横浜市立子安小学校(小学校) 1013m
横浜市立神奈川中学校(中学校) 1136m
ゆうゆうきっず横浜(幼稚園・保育園) 342m
まいばすけっと子安駅前店(スーパー) 446m
ファミリーマート白幡仲町店(コンビニ) 841m
ツルハドラッグ大口通店(ドラッグストア) 310m
慈啓会大口東総合病院(病院) 719m
横浜新子安郵便局(郵便局) 973m
コジマ×ビックカメラ横浜大口店(ホームセンター) 784m
スマートフォン版の表示に切り替える