今すぐ無料の会員登録で
閲覧可能物件数が
+1,903
営業時間: 9:30~20:30
定休日: 火曜日、水曜日
現地
物件画像
周辺環境
QRコードをスキャンして携帯でもご覧になれます。

売地 3区画

センチュリー21ゲットハウス
高井 風太
お問い合わせ先: 0120-540-844

おすすめコメント

反町駅まで徒歩10分の立地!
建築条件なしの為お好きな間取りでお家を建てたい方におすすめです♪

売地
8,480万円
    月々の返済額:22万円台
    神奈川県横浜市神奈川区松ケ丘
    表示住所までのルート

    東急東横線 反町駅 徒歩 10分 駅までのルート

    横浜市営ブルーライン 三ッ沢下町駅 徒歩 12分 駅までのルート

    東海道本線(東日本) 横浜駅 徒歩 16分 駅までのルート

    NEW現地見学会おすすめ会員限定
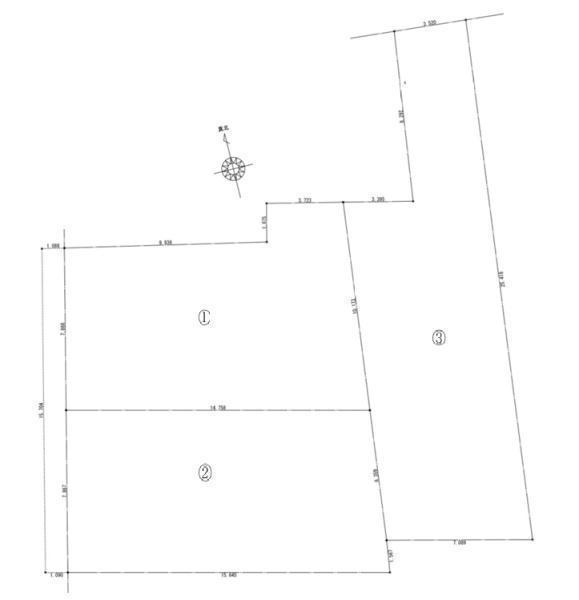
    土地面積
    147.28㎡(44.55坪)[公簿]
    建ぺい率
    50%
    容積率
    100%
    建築条件
    なし
    今すぐ会員登録する資料請求お気に入りに追加
    お問い合わせ先: 0120-540-844
    電話でお問合せする

    東急東横線「反町」駅徒歩10分!横浜市営地下鉄ブルーライン「三ツ沢下町」駅徒歩12分!建築条件なし!お好きなハウスメーカーで建築可能です!第一種低層エリアで穏やかな住環境です!

    物件情報
    名称
    売地 3区画
    価格
    8,480万円
    土地坪単価
    190.30万円
    権利金/保証金
    なし/なし
    所在地
    神奈川県横浜市神奈川区松ケ丘地図
    交通

    東急東横線 反町駅 徒歩 10分

    横浜市営ブルーライン 三ッ沢下町駅 徒歩 12分

    東海道本線(東日本) 横浜駅 徒歩 16分

    土地面積
    147.28㎡(44.55坪)[公簿]
    地目
    宅地
    土地権利
    所有権
    土地現況
    更地
    建築条件
    なし
    設備・条件
    閑静な住宅街 ガス:都市ガス 汚水:公共下水(使用可) 水道:公営水道(使用可)
    都市計画
    市街化区域
    用途地域
    第一種低層住居専用地域
    建ぺい率/容積率
    50%/100%
    国土法の届出
    不要
    特記事項
    宅地造成等規制法・松ケ丘まちづくりプラン・景観計画(開発許可のみ)
    最適用途
    住宅用地
    セットバック
    なし
    私道負担
    なし
    接道状況
    一方 北:幅員3.5m公道
    地域地区
    準防火地域 高度地区
    引渡時期
    相談
    学区

    青木小学校 約884m

    栗田谷中学校 約833m

    備考
    3区画●土地面積:147.28平米●建築条件なし●現況:更地●第一種低層住居専用地域
    物件情報更新日
    2025年11月28日(物件情報更新日より14日以内に更新)
    物件コード
    83301
    取引態様
    仲介
    今すぐ会員登録する資料請求お気に入りに追加
    お問い合わせ先: 0120-540-844
    電話でお問合せする

    地図

    センチュリー21ゲットハウス
    センチュリー21ゲットハウス
    来店・案内予約はこちら
    〒223-0052
    神奈川県横浜市港北区綱島東1丁目6-3 TS吉原ビル2・3F
    0120-540-844
    営業時間:9:30~20:30 定休日:火曜日、水曜日
    ローンシミュレーション
    • {{error}}
    物件価格
    8,480万円
    借入予定額
    万円
    頭金
    万円
    ボーナス(1回分)
    万円
    返済期間
    ローン金利
    ※ 金利参考先:横浜銀行
    金利
    %
    毎月の支払額
    {{repayment_price}} 円

    条件がよく似た物件

    外観
    外観
    間取図/区画図
    間取図/区画図
    外観
    横浜市立青木小学校(小学校) 726m
    横浜市立栗田谷中学校(中学校) 833m
    フレール保育園(幼稚園・保育園) 624m
    まいばすけっと反町駅西店(スーパー) 280m
    トップパルケ反町店(スーパー) 732m
    ミニストップ三ツ沢下町店(コンビニ) 462m
    クリエイトエス・ディー横浜六角橋店(ドラッグストア) 1259m
    横浜モアーズ(ショッピング施設) 1256m
    社会福祉法人恩賜財団済生会神奈川県病院(病院) 1874m
    スマートフォン版の表示に切り替える