今すぐ無料の会員登録で
閲覧可能物件数が
+1,759
営業時間: 9:30~20:30
定休日: 火曜日、水曜日
建物
物件画像
周辺環境
QRコードをスキャンして携帯でもご覧になれます。

新築一戸建 B号棟

新築一戸建て
6,880万円
    月々の返済額:18万円台
    神奈川県横浜市港北区高田東1丁目
    表示住所までのルート

    横浜市営グリーンライン 高田駅 徒歩 12分 駅までのルート

    東急東横線 綱島駅 徒歩 19分 駅までのルート

    NEW現地見学会おすすめ会員限定
    間取り
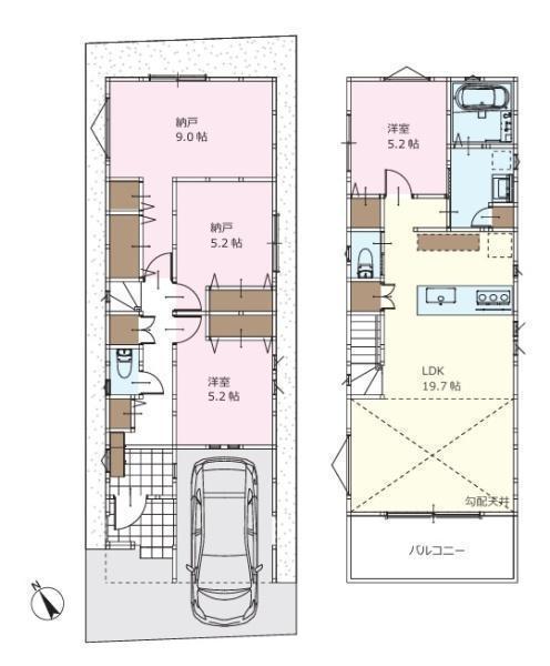
    2LDK+S(納戸)(2SLDK)
    築年月
    2026年03月予定
    土地面積
    93.72㎡(28.35坪)[公簿]
    建物面積
    114.27㎡(34.56坪)
    今すぐ会員登録する資料請求お気に入りに追加
    お問い合わせ先: 0120-540-844
    電話でお問合せする

    横浜市営地下鉄グリーンライン「「高田」駅徒歩12分!東急東横線「綱島」駅徒歩19分!駅まで平坦!静かな住環境です!床暖房付きで冬も暖か!対面式キッチンで家族の会話が弾みます!

    お客様のより良い住まいのため、最善を尽くします。よろしくお願い致します。

    物件情報
    名称
    新築一戸建 B号棟
    価格
    6,880万円(税込)
    権利金/保証金
    なし/なし
    所在地
    神奈川県横浜市港北区高田東1丁目地図
    交通

    横浜市営グリーンライン 高田駅 徒歩 12分

    東急東横線 綱島駅 徒歩 19分

    間取り
    2LDK+S(納戸)(2SLDK)
    部屋
    1F 洋 5.2帖 、1F S(納戸) 9.0帖 、1F S(納戸) 5.2帖 、2F LDK 19.7帖 、2F 洋 5.2帖
    建物現況
    建築中
    建物面積
    114.27㎡(34.56坪)
    土地面積
    93.72㎡(28.35坪)[公簿]
    地目
    宅地
    土地権利
    所有権
    築年月
    2026年03月予定
    建物構造
    木造(W)
    建物階建
    2階建
    駐車場
    あり ガレージ
    建築確認番号
    第25UDI1K建01479号
    設備・条件
    床暖房 システムキッチン 浄水器 食器洗乾燥機 トイレ2ヶ所 浴室乾燥機 シューズボックス 物置 TVドアホン バルコニー 24時間換気システム 閑静な住宅街 汚水:公共下水(使用可) 雑排水:公共下水(使用可) 水道:公営水道(使用可)
    都市計画
    市街化区域
    用途地域
    第二種住居地域
    建ぺい率/容積率
    60%/150%
    国土法の届出
    不要
    セットバック
    なし
    私道負担
    なし
    接道状況
    一方 南西:幅員4.0m公道
    地域地区
    準防火地域 高度地区 日影制限有
    引渡時期
    相談
    学区

    高田東小学校 約1100m

    高田中学校 約2000m

    備考
    B号棟●食洗機●浄水器●浴室乾燥機●玄関ポケットキー●バルコニースロップシンク●
    物件情報更新日
    2025年10月28日(物件情報更新日より14日以内に更新)
    物件コード
    80215
    取引態様
    仲介
    今すぐ会員登録する資料請求お気に入りに追加
    お問い合わせ先: 0120-540-844
    電話でお問合せする

    地図

    センチュリー21ゲットハウス
    センチュリー21ゲットハウス
    来店・案内予約はこちら
    〒223-0052
    神奈川県横浜市港北区綱島東1丁目6-3 TS吉原ビル2・3F
    0120-540-844
    営業時間:9:30~20:30 定休日:火曜日、水曜日
    ローンシミュレーション
    • {{error}}
    物件価格
    6,880万円
    借入予定額
    万円
    頭金
    万円
    ボーナス(1回分)
    万円
    返済期間
    ローン金利
    ※ 金利参考先:横浜銀行
    金利
    %
    毎月の支払額
    {{repayment_price}} 円

    条件がよく似た物件

    外観
    その他現地写真
    外観
    間取図/区画図
    その他
    その他
    その他現地写真
    間取図/区画図
    外観
    その他
    その他
    その他現地写真
    横浜市立高田東小学校(小学校) 1100m
    横浜市立高田中学校(中学校) 2000m
    桂幼稚園(幼稚園・保育園) 211m
    いなげや横浜綱島店(スーパー) 377m
    イオンスタイル横浜高田(スーパー) 1000m
    ローソンストア100高田東店(コンビニ) 224m
    ファミリーマート高田東一丁目店(コンビニ) 442m
    Fit Care DEPOT北綱島店(ドラッグストア) 672m
    日吉本町鯛ケ崎公園(公園) 814m
    スマートフォン版の表示に切り替える